Vente Appartement 29900, CONCARNEAU france 329 000 €
Descriptif du bien
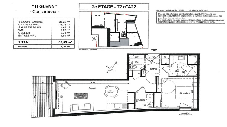
L'agence ESPACE IMMOBILIER a le plaisir de vous proposer à la vente cet appartement de type 2 de 52.53 m² situé au sein de la résidence « TI-GLENN ». Cette nouvelle résidence à l'architecture contemporaine et aux prestations de qualité est composée de seulement 16 appartements et se trouve au coeur de CONCARNEAU, dans le FINISTÈRE. Profitez d'une qualité de vie exceptionnelle : situé au coeur du centre-ville, à deux pas du port de plaisance, vivez dans un cadre privilégié, entre modernité et charme historique. Elle offre une proximité avec la Corniche, idéale pour les amateurs de balades en bord de mer. Vous bénéficierez également d'un accès facile aux commerces et services, tout ce dont vous avez besoin est à quelques pas de chez vous. L'appartement se compose d'une entrée, d'une cuisine ouverte, d'un séjour donnant sur un balcon de 8,09 m², d'un cellier, d'une chambre, d'une salle de douche et d'un WC. Il comprend également un emplacement de parking couvert et sécurisé. La réception de la résidence « TI-GLENN » est prévue pour janvier 2028. Frais de notaires réduits. Les équipements communs incluent un ascenseur et un local pour vélos. Ne manquez pas cette opportunité unique d'acquérir un appartement de standing dans ce projet exclusif. Contactez l'agence ESPACE IMMOBILIER à CONCARNEAU dès aujourd'hui pour plus d'informations. Copropriété de 16 lots (Pas de procédure en cours).









