Vente Appartement 60200, COMPIEGNE france 283 000 €
Descriptif du bien
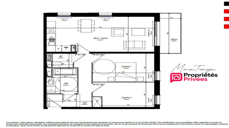
Découvrez ce bel appartement T3, situé dans le quartier recherché des Sablons à Compiègne, au 1er étage d'une résidence sécurisée avec ascenseur, alliant confort moderne, fonctionnalité et qualité de vie. Dès l'entrée, un hall d'accueil dessert une salle d'eau, des WC indépendants, ainsi que l'espace de vie. La pièce de vie avec cuisine ouverte, lumineuse et bien agencée, offre un espace convivial idéal pour le quotidien. Elle s'ouvre sur un extérieur agréable, parfait pour profiter des beaux jours en toute tranquillité. L'espace nuit se compose de deux chambres avec placards, fenêtres avec volets roulants. Les + de ce bien : Appartement T3 fonctionnel et lumineux 1er étage avec ascenseur Résidence sécurisée Garage en sous-sol inclus Une place de parking extérieure en complément Possibilité d'un projet d'investissement locatif serein. Visite possible d'un logement témoin pour mieux se projeter Ce bien est éligible au nouveau dispositif fiscal nommé "Relance Logement" permettant notamment : La déduction d'une partie du prix d'achat, La déduction de l'intégralité des charges liées à la location (travaux, intérêts d'emprunt, taxe foncière) Jusqu'à 12 000 euros d'amortissement par an Jusqu'à 10 700 euros de déduction sur les autres revenus (salaires, pensions Prix : 283 000 euros honoraires inclus à la charge du vendeur. FRAIS DE NOTAIRE OFFERTS Pour visiter et vous accompagner dans votre projet, contactez Marine TAMAGNE, au 0695009382 ou, par courriel à m.tamagne@proprietes-privees.com. Selon l'article L.561.5 du Code Monétaire et Financier, pour l'organisation de la visite, la présentation d'une pièce d'identité vous sera demandée. Cette présente annonce a été rédigée sous la responsabilité éditoriale de Marine TAMAGNE agissant sous le statut d'agent commercial immatriculé au RSAC COMPIEGNE 514774660 auprès de SAS PROPRIETES PRIVEES, au capital de 44 920 euros, ZAC LE CHÊNE FERRÉ - 44 ALLÉE DES CINQ CONTINENTS 44120 VERTOU; SIRET 487 624 777 00040, RCS Nantes. Carte Professionnelle Transactions sur immeubles et fonds de commerce (T) et Gestion immobilière (G) n°CPI 4401 2016 000 010 388 délivrée par la CCI Nantes - Saint Nazaire. Compte séquestre n°30932508467 BPA SAINT-SEBASTIEN-SUR-LOIRE (44230). Garantie GALIAN-SMABTP - 89 rue de la Boétie, 75008 Paris - n°28137 J pour 2 000 000 euros pour T et 120 000 euros pour G. Assurance responsabilité civile professionnelle par GALIAN-SMABTP n° de police 28137.J Mandat réf : 436998 - Le professionnel garantit et sécurise votre projet immobilier. Copropriété de 72 lots - dont 28 lots habitation. (). Charges annuelles : 720 euros. Marine TAMAGNE (EI) Agent Commercial - Numéro RSAC : COMPIEGNE 514774660 - . Les informations sur les risques auxquels ce bien est exposé sont disponibles sur le site Géorisques : www. georisques. gouv. fr
- Type de bien : Appartement
- Surface : 62 m²
- Localisation : France - Hauts-de-France - Oise
- Ville : COMPIEGNE
- Code postal : 60200
- Annonce créée le 07/02/2026





