Vente Appartement 92700, COLOMBES france 180 000 €
1 / 9
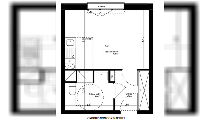
Descriptif du bien
COLOMBES - PETITE GARENNE Dans une RESIDENCE RECENTE de STANDING 2019, GRAND STUDIO de 26.30m² en PARFAIT ÉTAT entièrement au calme, comprenant : entrée avec placard, BELLE PIÈCE DE VIE avec espace nuit et CUISINE OUVERTE AMÉNAGÉE, salle d'eau/WC. Plan optimum, pas de perte de place. Chauffage et eau chaude collectifs inclus dans les charges, belles prestations. Idéal primo accédant ou investisseur. Très bien desservi par les transports : à 1 min du Tram T2 Jacqueline Auriol (ligne La Défense), à 5 min de la gare SNCF La Garenne (ligne Saint Lazare). Copropriété de 265 lots - dont 160 lots habitation. Charges annuelles : 1991.37 euros.
- Type de bien : Appartement
- DPE : C - 91 à 150 kWh/².an
- GES : C - 11 à 20 kg eq CO2/².an
- Surface : 26 m²
- Localisation : France - ile-de-france - Hauts de Seine
- Ville : COLOMBES
- Code postal : 92700
- Annonce créée le 24/03/2026








