Vente Appartement 83310, Cogolin france 410 000 €
Descriptif du bien
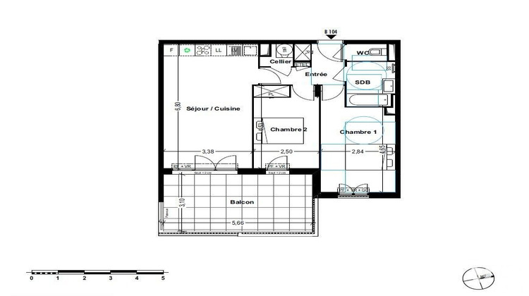
Iad France - Judicaelle Louis (07 43 56 89 76) vous propose : STOP ! Ne laissez pas passer cette pépite à Cogolin ! T3 dans résidence de standing avec piscine - GOLFE DE SAINT-TROPEZVous cherchez LE bon investissement ou votre futur coin de paradis ? Ne cherchez plus, vous venez de le trouver. Dans un quartier résidentiel ultra calme, à deux pas du centre et des plages, découvrez une résidence neuve haut de gamme où chaque détail a été pensé pour votre confort : -> Terrasse exposée sud-ouest pour vos apéros au soleil -> Garage sécurisé en sous-sol -> Piscine privée pour vos étés varois -> Prestations premium : carrelage 60x60, clim réversible, volets roulants électriques, placards aménagés, vidéophone...T3 de 61 m² environ avec terrasse de 17 m² environ et garage fermé - le tout conforme RE 2020 et au Pacte 3B (bas carbone, biodiversité, bien-vivre) Investisseurs : éligible Pinel, forte demande locative garantie ! Résidences principales ou secondaires : qualité de vie au top dans le Golfe de Saint-TropezVous aimez le soleil, le confort et les bonnes affaires ? Alors foncez. Ce type de bien part très vite. Contactez-moi avant qu'il ne soit trop tard ! Cogolin - entre mer, nature et dolce vitaHonoraires d'agence à la charge du vendeur. Bien non soumis au DPE. Les informations sur les risques auxquels ce bien est exposé sont disponibles sur le site Géorisques : www.georisques.gouv.fr. La présente annonce immobilière a été rédigée sous la responsabilité éditoriale de Mlle Judicaelle Louis EI (ID 92421), mandataire indépendant en immobilier (sans détention de fonds), agent commercial de la SAS I@D France immatriculé au RSAC de DRAGUIGNAN sous le numéro 811245687, titulaire de la carte de démarchage immobilier pour le compte de la société I@D France SAS. Retrouvez tous nos biens sur notre site internet. www.iadfrance.fr.Informations LOI ALUR : Honoraires charge vendeur. (gedeon_6727_32697884)
- Type de bien : Appartement
- Surface : 61 m²
- Localisation : France - provence-alpes-cote-d-azur - Var
- Ville : Cogolin
- Code postal : 83310
- Annonce créée le 26/03/2026





