Vente Appartement 63100, Clermont-Ferrand france 187 900 €
Descriptif du bien
Iad France - Pierre Magerand (06 37 21 92 42) vous propose : Appartement 2 pièces avec terrasse.
BIEN LIRE L'ANNONCE !
APPARTEMENT DISPONIBLE 2026 !
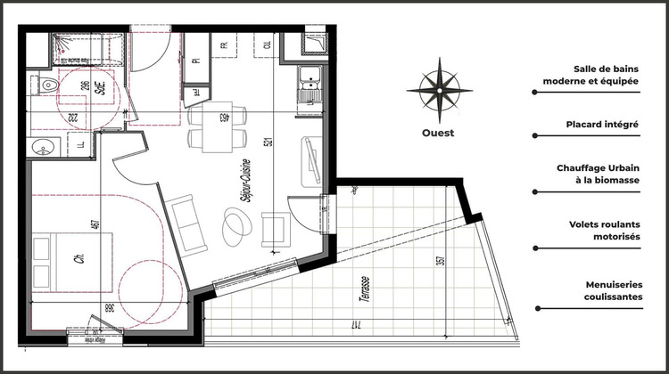
Situé au cOEur du projet emblématique Origine Franc Rosier sur l'avenue de la République, cet appartement de deux pièces offre une belle opportunité de vivre dans un écrin mêlant patrimoine historique et architecture contemporaine. Ce bien de 42 m² environ se trouve au 1 er étage d'une résidence de standing entièrement sécurisée et équipée d'un ascenseur.
Dès l'entrée, vous serez séduit par un beau séjour avec cuisine ouverte de 22 m² environ qui se prolonge par une grande terrasse de 16 m² environ. Exposé Ouest, cet extérieur vous offre une vue dégagée sur le parc paysager de la résidence et ses cèdres centenaires préservés. C'est également l'exposition parfaite pour profiter d'un salon baigné de lumière tout au long de la journée.
L'espace nuit a été pensé pour votre tranquillité, avec une grande chambre confortable, complété par une salle d'eau moderne aux finitions soignées.
Vivre ici, c'est intégrer un site historique où la chapelle et le petit noviciat reprennent vie au sein d'un parc paysager de 1 400 m² environ labellisé Biodiver'City. Vous profiterez d'un cadre de vie rare incluant des espaces d'expositions culturelles, un espace de coworking et une salle de sport privée.
La performance énergétique est au rendez-vous grâce au raccordement au réseau de chaleur urbain biomasse, garantissant un confort durable et des charges maîtrisées. Pas de travaux à prévoir et vous disposez d'une liberté de personnalisation pour créer un intérieur à votre image.
L'emplacement est tout simplement stratégique puisque le tramway se trouve au pied de l'immeuble pour rejoindre la place de Jaude en quinze minutes, tandis que le CHU Estaing et le stade Marcel-Michelin sont accessibles en quelques minutes à pied.
Augmentez votre capital en réduisant les frais de notaire et profitez d'un cadre de vie moderne, performant et clé en main.
Besoin de plus d'informations ou d'un accompagnement personnalisé ? N'hésitez pas à me contacter.
Honoraires d'agence à la charge du vendeur. Bien non soumis au DPE. Les informations sur les risques auxquels ce bien est exposé sont disponibles sur le site Géorisques : www.georisques.gouv.fr. La présente annonce immobilière a été rédigée sous la responsabilité éditoriale de M. Pierre Magerand EI (ID 86098), mandataire indépendant en immobilier (sans détention de fonds), agent commercial de la SAS I@D France immatriculé au RSAC de Cusset sous le numéro 938729175, titulaire de la carte de démarchage immobilier pour le compte de la société I@D France SAS.
Retrouvez tous nos biens sur notre site internet. www.iadfrance.fr.Informations LOI ALUR : Honoraires charge vendeur. (gedeon_6727_32923496)
- Type de bien : Appartement
- Surface : 42 m²
- Localisation : France - Auvergne-Rhône-Alpes - Puy-de-Dôme
- Ville : Clermont-Ferrand
- Code postal : 63100
- Annonce créée le 16/04/2026





