Vente Appartement 63000, Clermont-Ferrand france 240 775 €
Descriptif du bien
Iad France - Mathieu Pallix vous propose : T2 rénové - 53,10 m² + balcon - Hyper-centre Clermont-Ferrand - Résidence de la Cathédrale
Immeuble ancien entièrement réhabilité - Petite copropriété de 11 logements
Prestations modernes et rénovation complète
Programme éligible à la Loi Denormandie (réduction d'impôt possible) et porté par NOVIMMO, spécialiste de la rénovation de bâtiments anciens en centre-ville.
Adresse : 2 petite rue Saint-Pierre, Clermont-Ferrand
* Points forts
- Adresse premium en plein cOEur du centre historique
- Rénovation complète d'un immeuble ancien
- Prestations modernes et matériaux qualitatifs
- Balcon privatif de 5,80 m²
- DPE minimum visé : classe D
- Idéal pour une résidence principale ou un investissement locatif
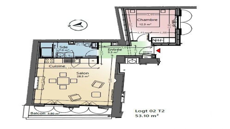
* Description du logement (Logt 02 - T2 - 53,10 m²)
- Typologie : T2
- Surface totale : 53,10 m²
- Balcon privatif : 5,80 m²
* Répartition des surfaces selon plan du logement :
- Entrée : 5,30 m²
- Séjour / Cuisine : 28,50 m²
- Salle d'eau : 7,00 m²
- Chambre : 12,30 m²
* Prestations incluses:
~ Isolation et structure:
Menuiseries bois à double vitrage
Volets bois rénovés ou neufs selon autorisation
Isolation thermique intérieure et isolation de la toiture
Isolation acoustique entre logements
~ Intérieur:
Parquet stratifié ou parquet massif vitrifié selon les zones
Porte palière sécurisée à serrure trois points
Placard aménagé
Radiateurs électriques à détection de présence
Production d'eau chaude par cumulus extra-plat
Ventilation mécanique contrôlée
Installation électrique conforme à la norme NF C15-100
~ Cuisine équipée:
Meubles hauts et bas
Four, plaques de cuisson et hotte
Salle d'eau
Bac à douche avec paroi
Meuble vasque avec miroir et éclairage intégré
Radiateur sèche-serviette
* Eligibilité Loi Denormandie:
> Réduction d'impôt jusqu'à 21 % selon durée d'engagement
> Engagement locatif possible de 6 à 12 ans
> Programme situé en centre-ville, dans une zone à forte demande locative
> Rénovation complète avec amélioration énergétique
Le dispositif est optionnel et compatible avec un achat en résidence principale.
* Localisation:
À une minute de la cathédrale
Tram accessible à pied (200m)
Gare à 7 min
Quartier historique recherché avec commerces et restaurants accessibles à pied
Contactez moi pour plus d'informations
Avis de valeur de votre bien offert, confidentiel et sans engagement
La presente annonce immobiliere vise 2 lots situés dans une copropriété de 22 lots au total et ne faisant l'objet d'aucune procédure en cours citée à l'article L. 721-1 du code de la construction et de l'habitation. Montant moyen mensuel de charges déclaré par le vendeur : 25¤ par mois (soit 300 ¤ annuel). Honoraires d'agence à la charge du vendeur.
Bien non soumis au DPE. Les informations sur les risques auxquels ce bien est exposé, y compris l'obligation légale de débroussaillement, sont disponibles sur le site Géorisques : http://www.georisques.gouv.fr.
La présente annonce immobilière a été rédigée sous la responsabilité éditoriale de M Mathieu Pallix mandataire indépendant en immobilier (sans détention de fonds), agent commercial de la SAS I@D France immatriculé au RSAC de CLERMONT-FERRAND sous le numéro 931885289, titulaire de la carte de démarchage immobilier pour le compte de la société I@D France SAS.Informations LOI ALUR : Soumis au régime de copropriété. Nombre de lots : 22. Quote part annuelle(moyenne) : 300 euros. Honoraires charge vendeur. (gedeon_6727_32252977)
- Type de bien : Appartement
- Surface : 53 m²
- Localisation : France - Auvergne-Rhône-Alpes - Puy-de-Dôme
- Ville : Clermont-Ferrand
- Code postal : 63000
- Annonce créée le 16/04/2026





