Vente Appartement 63000, Clermont-Ferrand france 352 000 €
Descriptif du bien
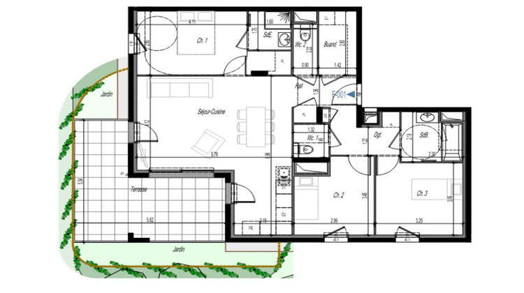
Iad France - Sarah Rozière (06 99 86 19 42) vous propose : Appartement T4 avec balcon et jardin à Clermont-FerrandSituée avenue de la République à Clermont-Ferrand, la résidence Le Clos du Parc s'inscrit dans le nouveau quartier Franc Rosier, un environnement résidentiel et verdoyant en pleine transformation. Cette adresse bénéficie d'un cadre de vie agréable avec commerces, écoles et transports accessibles rapidement. Le tramway et les pistes cyclables facilitent les déplacements au quotidien, tandis que le futur parc public face à la résidence apportera un véritable espace de nature en ville. Disponible 2028. Un appartement fonctionnel et lumineuxSitué au rez-de-chaussée, cet appartement T4 de 86,35 m² environ habitables propose un espace optimisé et prolongé par un balcon et un jardin.- Séjour / cuisine : 29,95 m² environ- Chambre 1 : 13,10 m² environ- Chambre 2 : 9,15 m² environ- Chambre 3 : 10,55 m² environ- Salle de bains : 4,60 m² environ- Salle d'eau : 2,70 m² environ- Terrasse : 20,50 m² environ- Jardin : 11,15 m² environDe belles prestations- Menuiseries aluminium et grandes baies vitrées pour une belle luminosité- Volets roulants électriques- Raccordement au réseau de chauffage urbain biomasse- Revêtements de sol résistants et personnalisables- Salle de bains équipée avec meuble vasque et doucheLa résidence privilégie également des matériaux à faible empreinte carbone et une conception respectueuse de l'environnement. L'art de vivre à Clermont-Ferrand- Quartier Montferrand à environ 5 minutes à pied- Arrêt de tramway Gravière à proximité- École et collège Franc Rosier à 1 minute à pied- Accès rapide aux autoroutes A71, A75 et A89- Parc public et espaces végétalisés autour de la résidenceLa ville de Clermont-Ferrand séduit par son dynamisme, son patrimoine historique et ses nombreux équipements culturels et sportifs. N'hésitez pas à me contacter pour plus d'informations ou pour un accompagnement sur mesure dans votre projet immobilier. Honoraires d'agence à la charge du vendeur. Bien non soumis au DPE. Les informations sur les risques auxquels ce bien est exposé sont disponibles sur le site Géorisques : www.georisques.gouv.fr. La présente annonce immobilière a été rédigée sous la responsabilité éditoriale de Mlle Sarah Rozière EI (ID 83696), mandataire indépendant en immobilier (sans détention de fonds), agent commercial de la SAS I@D France immatriculé au RSAC de Clermont-Ferrand sous le numéro 978616993, titulaire de la carte de démarchage immobilier pour le compte de la société I@D France SAS. Retrouvez tous nos biens sur notre site internet. www.iadfrance.fr.Informations LOI ALUR : Honoraires charge vendeur. (gedeon_6727_32812161)
- Type de bien : Appartement
- Surface : 86 m²
- Localisation : France - Auvergne-Rhône-Alpes - Puy-de-Dôme
- Ville : Clermont-Ferrand
- Code postal : 63000
- Annonce créée le 12/03/2026





