Vente Appartement 30870, Clarensac france 200 500 €
Descriptif du bien
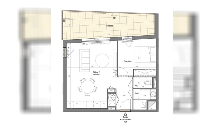
Iad France - Penelope Stoker (06 50 24 86 27) vous propose : Appartement T2 avec terrasse et parking à Clarensac
Dans la Vaunage, au sein d'une résidence sécurisée, découvrez cet appartement de type T2 situé au 1er étage.
D'une surface habitable de 46 m² environ, il offre une distribution fonctionnelle et agréable :
Une belle pièce de vie séjour / cuisine de 30 m² environ,
Une chambre confortable de 11 m² environ,
Une salle d'eau,
Un WC indépendant.
Vous profiterez également d'une terrasse de 17 m² environ, idéale pour les repas en extérieur et les moments de détente.
Ce bien constitue une opportunité idéale pour une première acquisition, un pied-à-terre ou un investissement locatif, dans un environnement calme et recherché à proximité des commodités.
Pour plus d'informations sur le programme ou organiser une visite, merci de me contacter.
Honoraires d'agence à la charge du vendeur. Bien non soumis au DPE. Les informations sur les risques auxquels ce bien est exposé sont disponibles sur le site Géorisques : www.georisques.gouv.fr. La présente annonce immobilière a été rédigée sous la responsabilité éditoriale de Mme Penelope Stoker EI (ID 83102), mandataire indépendant en immobilier (sans détention de fonds), agent commercial de la SAS I@D France immatriculé au RSAC de Paris sous le numéro 930194964, titulaire de la carte de démarchage immobilier pour le compte de la société I@D France SAS.
Retrouvez tous nos biens sur notre site internet. www.iadfrance.fr.Informations LOI ALUR : Honoraires charge vendeur. (gedeon_6727_32591964)




