Vente Appartement 92140, Clamart france 285 000 €
Descriptif du bien
Située en retrait de l'avenue du Général de Gaulle, la résidence bénéficie d'un environnement calme et verdoyant, tout en profitant d'une proximité immédiate avec les commodités du quotidien. Crèches, établissements scolaires, équipements sportifs et culturels se trouvent à quelques pas, tandis que le parc Robert Auzelle et le Bois de Clamart offrent de belles échappées nature. Idéalement desservie, la station de tramway T6 « Pavé Blanc », à moins de 200 mètres, permet de rejoindre facilement Paris et les communes environnantes.
Inspirée du style Art Déco, l'architecture se distingue par une élégante façade en pierre de taille et des lignes raffinées. Les appartements, du 2 au 4 pièces, s'ouvrent sur de beaux espaces extérieurs -- balcons, jardins privatifs ou terrasses plein ciel en attique -- et bénéficient de prestations soignées. Avec ses stationnements et son atmosphère résidentielle apaisée, cette adresse conjugue harmonieusement confort, élégance et qualité de vie.
- Type de bien : Appartement
- GES : A -< 6 kg eq CO2/².an
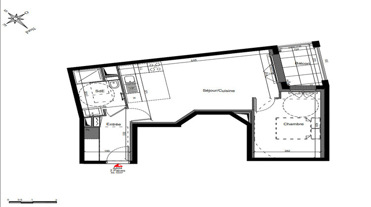
- Surface : 45 m²
- Localisation : France - ile-de-france - Hauts de Seine
- Ville : Clamart
- Code postal : 92140
- Annonce créée le 05/11/2025



