Vente Appartement 17340, Châtelaillon-Plage france 369 000 €
Descriptif du bien
L'Agence MON BIEN A LA MER, Spécialiste de l'immo neuf en Bord de Mer, vous présente :
Entre terre et mer, secteur calme, à proximité de l'hippodrome et du tennis club.
Petite résidence neuve pour début 2028, organisée autour d'un jardin paysager, votre logement reprend l'architecture locale.
Normes RE2020, climatisation réversible chaud/froid, Frais de notaire réduits.
Centre ville, commerces, plage à 15 min à pied.
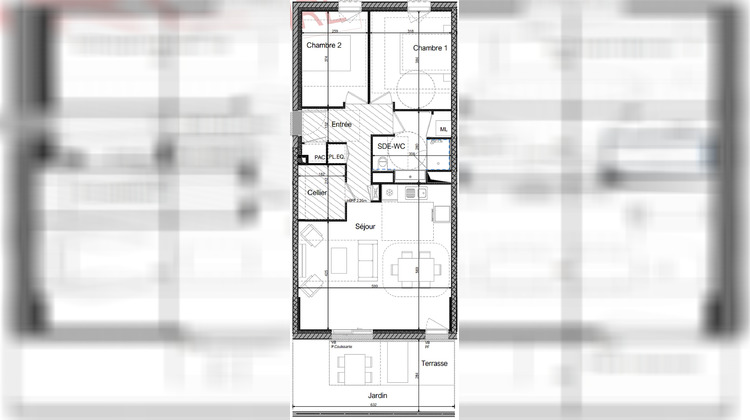
Ce T3 est situé au rez de chaussée exposé sud ouest :
- Séjour 30,2m2
- Terrasse/jardin 18m2
- Deux chambres 11,93-9,51m2
- Entrée, cellier 3,87m2, Salle d'eau douche à l'italienne 7m2, wc suspendus, placard à machines
- Deux Parkings inclus.
Nous Consulter
Honoraires à la charge du vendeur. Non soumis au DPE. Les informations sur les risques auxquels ce bien est exposé sont disponibles sur le site Géorisques : georisques.gouv.fr.
Votre conseiller MON BIEN A LA MER : Gérant - .fr MON BIEN A LA MER
Carte T CPI 2201 2018 000 025 040
RCP ACM IARD B1 7025278
- Type de bien : Appartement
- Surface : 70 m²
- Localisation : France - Nouvelle-Aquitaine - Charente Maritime
- Ville : Châtelaillon-Plage
- Code postal : 17340
- Annonce créée le 20/03/2026





