Vente Appartement 17340, Châtelaillon-Plage france 229 000 €
Descriptif du bien
L'Agence MON BIEN A LA MER, Spécialiste de l'immo neuf en Bord de Mer, vous présente :
Entre terre et mer, secteur calme, à proximité de l'hippodrome et du tennis club.
Petite résidence neuve pour début 2028, organisée autour d'un jardin paysager, votre logement reprend l'architecture locale.
Normes RE2020, climatisation réversible chaud/froid, Frais de notaire réduits.
Centre ville, commerces, plage à 15 min à pied.
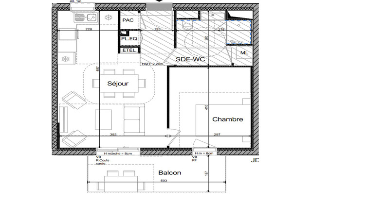
Ce T2 est situé au 1er et dernier étage.
- Le séjour est spacieux et traversant : 27,89m2 exposé sud/ouest
- Terrasse 9,85m2 (profondeur 1,87m)
- Chambre 12,19m2
- Entrée, Salle d'eau douche à l'italienne, wc suspendus, placard à machines
- Parking inclus.
Nous Consulter
Honoraires à la charge du vendeur. Non soumis au DPE. Les informations sur les risques auxquels ce bien est exposé sont disponibles sur le site Géorisques : georisques.gouv.fr.
Votre conseiller MON BIEN A LA MER : Gérant - .fr MON BIEN A LA MER
Carte T CPI 2201 2018 000 025 040
RCP ACM IARD B1 7025278
- Type de bien : Appartement
- Surface : 47 m²
- Localisation : France - Nouvelle-Aquitaine - Charente Maritime
- Ville : Châtelaillon-Plage
- Code postal : 17340
- Annonce créée le 20/03/2026





