Vente Appartement 17340, Châtelaillon-Plage france 763 900 €
Descriptif du bien
TRES RARE : Plein FRONT DE MER, exposé sud-ouest, face à l'Océan et au soleil couchant.
Petite résidence neuve de 9 lots seulement, reprenant l'architecture locale.
Ascenseur, Pompe à chaleur, prestations de standing.
Livraison début 2028.
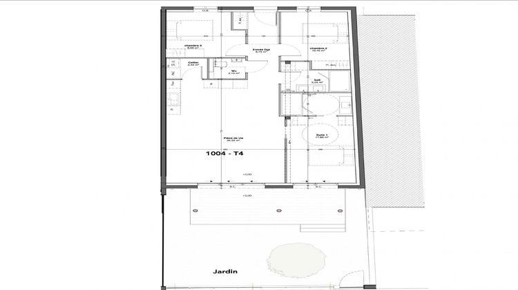
Appartement T4 au rez de chaussée :
- Front de mer : Séjour 34m2 avec cellier, suite parentale 17,85m2 avec salle d'eau attenante
- Côté cour : deux chambres 10m2, 2è salle d'eau, dégagement, wcs suspendus séparés
- Jardin 41m2 et terrasse 16m2 front de mer
- Deux parkings intérieurs inclus.
Frais de notaire réduits.
Nous Consulter.
Honoraires à la charge du vendeur. Non soumis au DPE. Les informations sur les risques auxquels ce bien est exposé sont disponibles sur le site Géorisques : georisques.gouv.fr.
Votre conseiller MON BIEN A LA MER : Gérant - .fr MON BIEN A LA MER
Carte T CPI 2201 2018 000 025 040
RCP ACM IARD B1 7025278
- Type de bien : Appartement
- Surface : 88 m²
- Localisation : France - Nouvelle-Aquitaine - Charente Maritime
- Ville : Châtelaillon-Plage
- Code postal : 17340
- Annonce créée le 20/03/2026





