Vente Appartement 84470, Châteauneuf-de-Gadagne france 145 000 €
Descriptif du bien
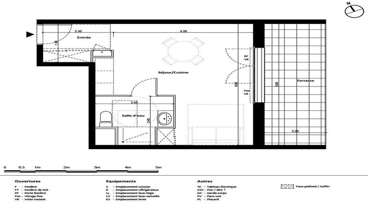
Iad France - Céline Inaudi (06 58 44 63 26) vous propose : Appartement type Studio avec terrasse et place de parking à Châteauneuf-de-Gadagne. Un cadre de vie idéal entre L'Isle-sur-la-Sorgue et Avignon. Dans un environnement résidentiel recherché, découvrez cet appartement de 32.70 m² environ habitables, situé au rez de chaussée d'une résidence moderne et sécurisée. Pièce de vie avec espace cuisine, ouvrant sur une belle terrasse de 12 m² environ exposée Est. Une salle d'eau avec WC. Inclus une place de stationnement privative au sous sol de la résidence. Un agencement optimisé pour un premier achat ou un investissement locatif nu ou meublé. À environ 15 min de l'Isle sur la Sorgue et d'Avignon, commerces, écoles, collèges et lycées à proximité. 8 minutes de l'autoroute A7Plus d'informations sur demande. Honoraires d'agence à la charge du vendeur. Bien non soumis au DPE. Les informations sur les risques auxquels ce bien est exposé sont disponibles sur le site Géorisques : www.georisques.gouv.fr. La présente annonce immobilière a été rédigée sous la responsabilité éditoriale de Mlle Céline Inaudi EI (ID 85801), mandataire indépendant en immobilier (sans détention de fonds), agent commercial de la SAS I@D France immatriculé au RSAC de Avignon sous le numéro 532514403, titulaire de la carte de démarchage immobilier pour le compte de la société I@D France SAS. Retrouvez tous nos biens sur notre site internet. www.iadfrance.fr.Informations LOI ALUR : Honoraires charge vendeur. (gedeon_6727_32931487)
- Type de bien : Appartement
- Surface : 33 m²
- Localisation : France - provence-alpes-cote-d-azur - Vaucluse
- Ville : Châteauneuf-de-Gadagne
- Code postal : 84470
- Annonce créée le 26/03/2026


