Vente Appartement 28000, Chartres france 119 000 €
Descriptif du bien
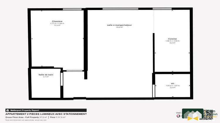
APPARTEMENT 2 PIÈCES LUMINEUX AVEC STATIONNEMENT
Bienvenue dans votre futur chez-vous !
Nous sommes ravis de vous présenter cette exclusivité un (T2), bénéficiant de notre pack visibilité. Profitez de notre visite virtuelle et de photos haute qualité pour découvrir cette belle opportunité à saisir, située dans une résidence construite en 2007, au 1er étage sur 3 avec ascenseur, à Chartres.
DÉCOUVREZ L'INTÉRIEUR :
- Un séjour lumineux
- Une cuisine ouverte, aménagée et équipée
- Une chambre spacieuse
- WC indépendants
- Une salle de bains moderne
ESPACE EXTÉRIEUR & STATIONNEMENT :
- Stationnement intérieur sécurisé pour votre véhicule
CÔTÉ CONFORT :
- Chauffage individuel
- Fenêtres en PVC avec double vitrage
- Appartement en excellent état
- Lumineux
- Ascenseur
L'EMPLACEMENT :
- Bus à 5 minutes à pied
- École élémentaire à 5 minutes à pied
- École maternelle à 10 minutes à pied
- Restaurants à 5 minutes à pied
- Médecins généralistes à 10 minutes à pied
- Crèche à 15 minutes à pied
N'hésitez pas à contacter votre agent au Noeud Pap' pour obtenir plus d'informations et organiser une visite de cet appartement à Chartres !
Honoraires à la charge du vendeur. Dans une copropriété de 77 lots. Quote-part moyenne du budget prévisionnel 1 423 /an. Aucune procédure n'est en cours. Classe énergie C, Classe climat B Montant estimé des dépenses annuelles d'énergie pour un usage standard : entre 846.00 et 1146.00 sur les années 2021, 2022 et 2023 (abonnements compris). Les informations sur les risques auxquels ce bien est exposé sont disponibles sur le site Géorisques : georisques.gouv.fr.
Votre conseiller Bien Serein immobilier : Mathis VILCOQ
Agent commercial (Entreprise individuelle)
RSAC 951127430
- Type de bien : Appartement
- DPE : C - 91 à 150 kWh/².an
- GES : B - 6 à 10 kg eq CO2/².an
- Surface : 48 m²
- Localisation : France - centre-val-de-loire - Eure et Loir
- Ville : Chartres
- Code postal : 28000
- Annonce créée le 23/01/2026





