Vente Appartement 69260, CHARBONNIERES-LES-BAINS france 1 100 000 €
1 / 9
Descriptif du bien
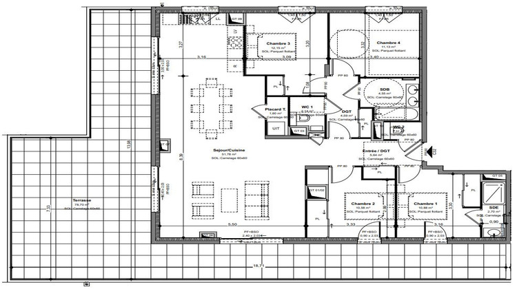
A proximité immédiate du centre de charbonnière, dans un très joli parc arboré, je vous propose à la vente cet appartement Attique de 118,92m² avec trois Terrasses, aux dernières normes comprenant : une entrée, un séjour avec cuisine ouverte donnant sur une terrasse de 78,70m², une suite parentale avec salle d'eau, trois autres chambres avec terrasse, une salle de bains et deux WC. Isolation phonique et thermique renforcés, faibles charges. Visuel non contractuel. Merci de contacter votre conseiller Grégory pour plus d'informations Copropriété de 46 lots - dont 46 lots habitation. (Pas de procédure en cours). Charges annuelles : 1800 euros.
- Type de bien : Appartement
- DPE : B - 51 à 90 kWh/².an
- GES : B - 6 à 10 kg eq CO2/².an
- Surface : 119 m²
- Localisation : France - Auvergne-Rhône-Alpes - Rhône
- Ville : CHARBONNIERES-LES-BAINS
- Code postal : 69260
- Annonce créée le 10/02/2026








