Vente Appartement 24750, Champcevinel france 96 500 €
1 / 4
Descriptif du bien
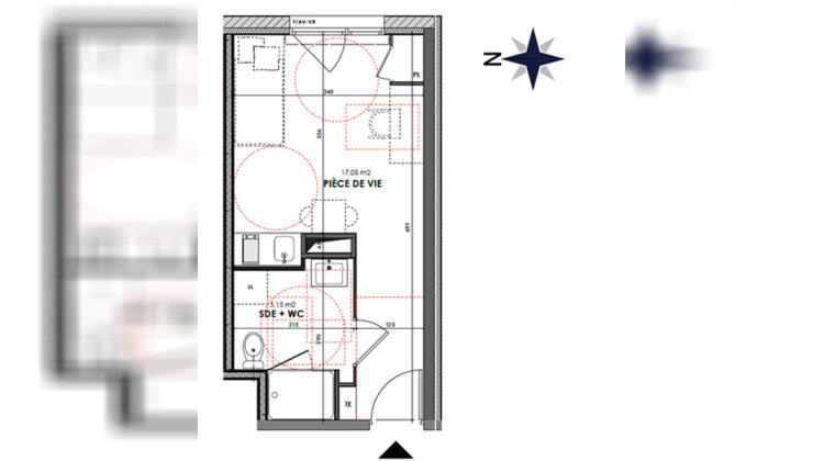
L'agence Home 40 vous présente ce studio de 22,20m2 sur le campus universitaire de Perigueux Champcevinel. La pièce de vie est équipée d'une kitchenette. Salle d'eau avec WC. Belle rentabilté locative. Il ne s'agit pas d'une résidence étudiante donc vous êtes libre de louer votre appartement comme vous le souhaitez. L'appartement sera disponible pour la rentrée 2026. Les informations sur les risques auxquels ce bien est exposé sont consultables sur le site : www.georisques.gouv.fr UNE AUTRE CONCEPTION DE L'IMMOBILIER !
- Type de bien : Appartement
- Surface : 22 m²
- Localisation : France - Nouvelle-Aquitaine - Dordogne
- Ville : Champcevinel
- Code postal : 24750
- Annonce mise à jour le 06/08/2025



