Vente Appartement 73190, CHALLES LES EAUX france 578 000 €
Descriptif du bien
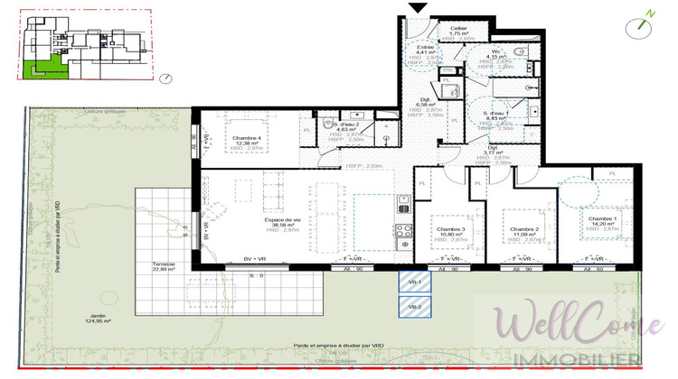
Appartement neuf T5 de 120,76 m² en rez-de-jardin coté SUD + 2 Box – Challes-les-Eaux À Challes-les-Eaux, sur l’Avenue de Chambéry à seulement 400 m du centre-ville dans la nouvelle résidence « Belle Horizon », découvrez cet appartement neuf 3 pièces de 66,82 m² situé au 1er étage sur 3 et bénéficiant d’une belle exposition Sud. La résidence se compose de deux bâtiments à taille humaine (2 étages + attique), à l’architecture élégante et contemporaine, conçus pour s’intégrer harmonieusement dans leur environnement naturel. Offre commerciale du 15/02/26 au 31/03/26 : Frais de notaire OFFERTS et 2.000 € de REMISE par pièce sur un grand nombre de logements. L’appartement T5 comprend : -Entrée / 2 Dégagements : 14,76m² -Séjour/Cuisine : 38,58m² côté Sud-Ouest avec accès terrasse et jardin de 147,84m² -1 Chambre avec salle d'eau et WC : 17,01m² -3 Chambres : 10,80m², 11,09m², 14,20m² -Salle d'eau 8,43m² et WC indépendant : 4,15m² -Cellier interieur : 1,75m² Vendu avec 2 garages au sous-sol. Présence de locaux vélos dans la résidence. D’autres appartements (du T2 au T5) sont disponibles dans la résidence Pour plus d’informations et pour réserver votre futur appartement, contactez votre agence WellCome Immobilier ! Frais de notaires réduits Livraison : 4ème Trimestre 2027 Programme conforme RE 2020, seuil 2022 Éligible : Accession Libre, Jeanbrun, Zone B1, LMNP Prix TTC et Honoraires à charge vendeur TTC Bien soumis au statut juridique de la Copropriété. Nb de lots : 36. Pas de procédure en cours. Surface CARREZ : 120.76 m²
- Type de bien : Appartement
- Surface : 120 m²
- Localisation : France - Auvergne-Rhône-Alpes - Savoie
- Ville : CHALLES LES EAUX
- Code postal : 73190
- Annonce créée le 02/03/2026




