Vente Appartement 73190, Challes-les-Eaux france 210 000 €
Descriptif du bien
Plateaux en duplex à aménager Proche Centre de Challes les eaux
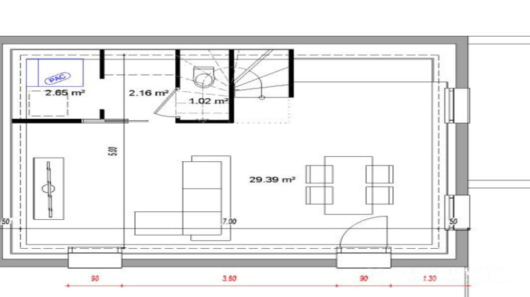
À Challes-les-Eaux, à proximité immédiate du centre-ville, découvrez cet appartement en duplex d'une surface au sol de 82 m² vendu en plateaux bruts. Il se trouve au premier et dernier étage d'une résidence intimiste de seulement quatre logements, chacun disposant de son entrée indépendante.
Le bâtiment a fait l'objet d'une rénovation complète : toiture, façades et huisseries aluminium, offrant confort, qualité et modernité.
Ce duplex bénéficie d'un grand balcon permettant de profiter d'une vue dégagée. Les volumes offrent une distribution agréable sur deux niveaux et un cadre de vie lumineux avec une oreitation sud et ouest.
Un carport ainsi qu'une cave viennent compléter ce bien.
La résidence ne génère aucun frais de copropriété, hormis l'assurance du bâtiment à partager entre les propriétaires, garantissant des charges très maîtrisées.
D'autres lots en plateaux avec des configurations différentes sont également disponibles à la vente au sein de cette même résidence.
N'hésitez pas à nous contacter pour plus de renseignements ou pour organiser une visite sur place.
Honoraires à la charge du vendeur. Dans une copropriété de 13 lots. Quote-part moyenne du budget prévisionnel 300 /an. Aucune procédure n'est en cours. Non soumis au DPE. Les informations sur les risques auxquels ce bien est exposé sont disponibles sur le site Géorisques : georisques.gouv.fr.
Votre conseiller LLOYD & DAVIS : Hélène FARGEAU
Agent commercial (Entreprise individuelle)
RSAC 499 694 503 Nîmes
RCP ACI26398 Sérénis
- Type de bien : Appartement
- Surface : 82 m²
- Localisation : France - Auvergne-Rhône-Alpes - Savoie
- Ville : Challes-les-Eaux
- Code postal : 73190
- Annonce créée le 30/01/2026




