Vente Appartement 73190, Challes-les-Eaux france 190 000 €
Descriptif du bien
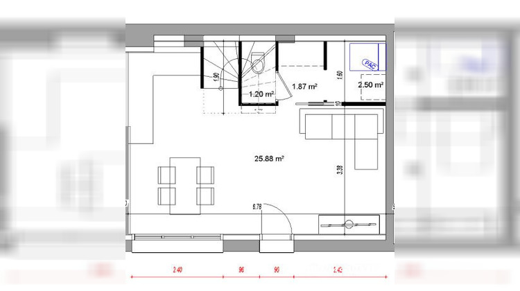
Duplex en plateaux au dernier étage Garage Challes les Eaux
À Challes-les-Eaux, à deux pas du centre-ville, découvrez cet appartement en duplex situé au premier et dernier étage d'une résidence intimiste composée de seulement quatre logements, chacun disposant de son entrée indépendante.
La bâtisse a été entièrement rénovée avec des prestations structurelles de qualité, comprenant une toiture neuve, les façades et des huisseries aluminium, assurant confort, pérennité et lignes contemporaines.
Ce duplex offre de beaux volumes répartis sur deux niveaux et un cadre de vie agréable au calme, avec une luminosité appréciable liée à sa situation en dernier étage.
Un garage privatif vient compléter ce bien, offrant une solution de stationnement sécurisée et pratique au quotidien.
La résidence ne génère aucun frais de copropriété, à l'exception de l'assurance du bâtiment à partager entre les propriétaires, permettant des charges très maîtrisées.
D'autres appartements et plateaux aux configurations variées sont également disponibles à la vente au sein de cette même résidence.
N'hésitez pas à nous contacter pour plus de renseignements ou pour organiser une visite sur place.
Honoraires à la charge du vendeur. Dans une copropriété de 13 lots. Quote-part moyenne du budget prévisionnel 300 /an. Aucune procédure n'est en cours. Non soumis au DPE. Les informations sur les risques auxquels ce bien est exposé sont disponibles sur le site Géorisques : georisques.gouv.fr.
Votre conseiller LLOYD & DAVIS : Hélène FARGEAU
Agent commercial (Entreprise individuelle)
RSAC 499 694 503 Nîmes
RCP ACI26398 Sérénis
- Type de bien : Appartement
- Surface : 71 m²
- Localisation : France - Auvergne-Rhône-Alpes - Savoie
- Ville : Challes-les-Eaux
- Code postal : 73190
- Annonce créée le 30/01/2026



