Vente Appartement 97300, CAYENNE france 187 000 €
Descriptif du bien
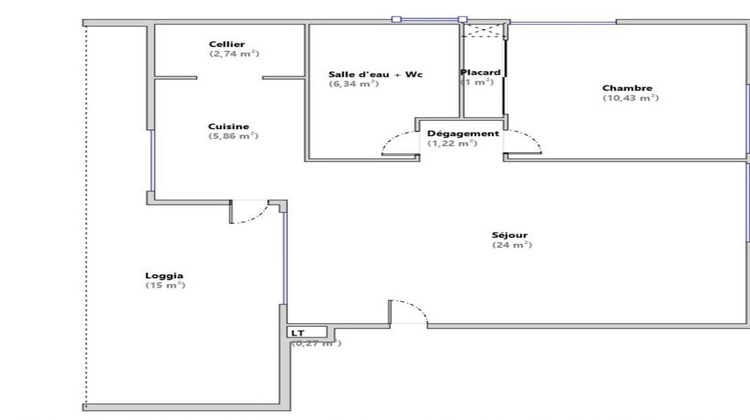
Grand T2 rénové – Cayenne, secteur Baduel Idéalement situé dans le secteur très recherché de Baduel, ce grand appartement T2 bénéficie d'un emplacement stratégique, au cœur de la vie économique de Cayenne, à proximité immédiate des transports en commun, des commerces et des infrastructures de loisirs, tout en offrant un cadre de vie calme et sécurisé. Le bien se trouve au sein d'une résidence de standing, très bien entretenue, composée de plus de 80 logements répartis sur 3 bâtiments. La copropriété, particulièrement dynamique, veille au maintien d'un environnement de qualité, sécurisé et agréable au quotidien. Elle est également dotée d'une piscine collective dans laquelle vous pourrez vous détendre. Entièrement refait à neuf il y a quelques mois, cet appartement séduit par ses beaux volumes, sa luminosité exceptionnelle et sa ventilation naturelle, des prestations rares dans le secteur. il est donc habitable de suite et vous y trouverez tous le confort dont vous avez besoin. Il se compose de : Une cuisine moderne, aménagée et entièrement équipée Une chambre spacieuse et climatisée, avec dressing intégré Une salle d'eau fonctionnelle, offrant de beaux volumes et un grand miroir Une loggia de 15 m², véritable espace de vie supplémentaire Aucun vis-à-vis, garantissant confort et intimité Un bien où il fait véritablement bon vivre, alliant confort moderne, tranquillité et proximité urbaine. Par ailleurs, ce bien peut être une opportunité idéale pour un primo-accédant ou pour un investissement sécurisé et pérenne dans un secteur avec une forte demande locative. Nombre de lots de la copropriété : 84, Montant moyen annuel de la quote-part de charges (budget prévisionnel) : 1300€ soit 108€ par mois. Les honoraires sont à la charge du vendeur. Les informations sur les risques auxquels ce bien est exposé sont disponibles sur le site Géorisques : www. georisques. gouv. fr. Réseau Immobilier CAPIFRANCE - Votre agent commercial (RSAC N°987 696 028 - Greffe de CAYENNE) Céliane RINGUET Entrepreneur Individuel +594694433590 - Réf.938310




