Vente Appartement 59540, CAUDRY france 59 900 €
Descriptif du bien
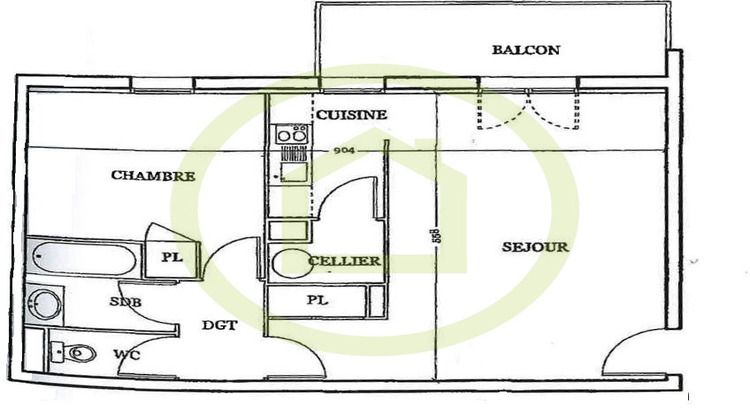
Vous rechechez un petit nid douillet et fonctionnel dans une résidence assez récente pour vous ou pour faire de l'investissement locatif, je vous propose ce bien d'environ 49 m2 comprenant : - une pièce à vivre avec coin cusine ouvert de 28m2 - une chambre de 12 m2 - une salle de bain - un WC séparé - un balcon récemment rénové, comme la façade Le tout, équipé de placards, fenêtres PVC double vitrage avec volets roulants, radiateurs et chauffe-eau électriques, interphone, Code d'accès grille et une place de parking. Bien actuellement loué. Pour visiter et vous accompagner dans votre projet, contactez Christelle DUCHESNE au 06 09 800 820 - (réf. 37202) Selon l'article L.561.5 du Code Monétaire et Financier, pour l'organisation de la visite, la présentation d'une pièce d'identité vous sera demandée. Les informations sur les risques auxquels ce bien est exposé sont disponibles sur le site Géorisques : www.georisques.gouv.fr Cette présente annonce a été rédigée sous la responsabilité éditoriale de Christelle DUCHESNE agissant sous le statut d'agent commercial immatriculée à DOUAI sous le numéro RSAC N° 878 666 023 auprès de la SAS IMMO RESEAU au capital de 10 000€ - Réseau national immobilier sur internet, 44 Allée des Cinq Continents - 44120 VERTOU - RNE NANTES 519 718 886. Carte professionnelle T et G n° CPI 3002 2018 000 024 971 CCI de Nantes-Saint-Nazaire (44) ; Garantie par GALIAN – 89 rue de la Boétie - 75008 Paris N°171379G pour 120 000€ pour T. Assurance responsabilité civile professionnelle par GALIAN n° de police 120 137 405 Le professionnel garantit et sécurise votre projet immobilier Prix de vente 59 900 € Honoraires à la charge du vendeur Montant estimé des dépenses annuelles d'énergie pour un usage standard : entre 770 € et 1 100 € par an. Prix moyens des énergies indexés sur les années 2021 2022 2023 (abonnement compris). DPE : C GES : C
- Type de bien : Appartement
- DPE : C - 91 à 150 kWh/².an
- GES : C - 11 à 20 kg eq CO2/².an
- Surface : 48 m²
- Localisation : France - Hauts-de-France - Nord
- Ville : CAUDRY
- Code postal : 59540
- Annonce mise à jour le 28/03/2026





