Vente Appartement 34170, Castelnau-le-Lez france 437 500 €
Descriptif du bien
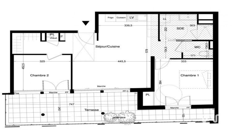
Iad France - Penelope Stoker (06 50 24 86 27) vous propose : Appartement T3 avec terrasse et garage à Castelneau-Le-Lez
Dans un secteur recherché de Castelneau-Le-Lez, à proximité immédiate de Montpellier, découvrez cet appartement T3 situé au dernier étage d'une résidence contemporaine sécurisée.
Ce bien offre une surface habitable de 61 m² environ, avec une distribution fonctionnelle.
La pièce de vie avec cuisine ouverte de 32 m² environ, lumineuse, donne accès à une terrasse de 22 m² environ, idéal pour profiter des beaux jours.
L'espace nuit se compose de deux chambres, d'une salle d'eau ainsi que de WC séparés.
Un appartement parfaitement adapté à une résidence principale, un pied-à-terre ou un investissement de qualité.
Demande d'informations ou visite sur demande.
Honoraires d'agence à la charge du vendeur. Bien non soumis au DPE. Les informations sur les risques auxquels ce bien est exposé sont disponibles sur le site Géorisques : www.georisques.gouv.fr. La présente annonce immobilière a été rédigée sous la responsabilité éditoriale de Mme Penelope Stoker EI (ID 83102), mandataire indépendant en immobilier (sans détention de fonds), agent commercial de la SAS I@D France immatriculé au RSAC de Paris sous le numéro 930194964, titulaire de la carte de démarchage immobilier pour le compte de la société I@D France SAS.
Retrouvez tous nos biens sur notre site internet. www.iadfrance.fr.Informations LOI ALUR : Honoraires charge vendeur. (gedeon_6727_32681198)



