Vente Appartement 34170, Castelnau-le-Lez france 115 000 €
Descriptif du bien
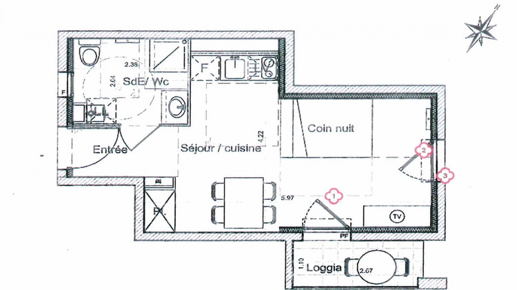
Castelnau-Le-Lez Type 1 de 26.30 m2 hab env situé au 2eme et dernier étage de la résidence récente et sécurisée 'Patio Galiléa'. Type 1 proche de toutes les commodités, Tram / bus, commerces, centre ville de Montpellier.. T1 composé d'une entrée, d'une belle pièce de vie accès Loggia de 3 m2 env, d'un coin cuisine aménagée et d'une salle d'eau avec wc. T1 actuellement occupé, bail en cours, Loyer 523.06 / Mois charges comprises. Idéal investissement locatif, 1er achat !!!
Bien en copropriété, pas de procédures en cours, Prix de vente HAI 115 000 les honoraires d'agence sont à la charge du vendeur.
'Les informations sur les risques auxquels ce bien est exposé sont disponibles sur le site Géorisques : www.georisques.gouv.fr'
Honoraires à la charge du vendeur. Dans une copropriété de 60 lots. Quote-part moyenne du budget prévisionnel 680 /an. Aucune procédure n'est en cours. Classe énergie C, Classe climat C Montant moyen estimé des dépenses annuelles d'énergie pour un usage standard, établi à partir des prix de l'énergie de l'année 2023 : entre 210.00 et 330.00 . Les informations sur les risques auxquels ce bien est exposé sont disponibles sur le site Géorisques : georisques.gouv.fr.





