Vente Appartement 34170, Castelnau-le-Lez france 290 000 €
Descriptif du bien
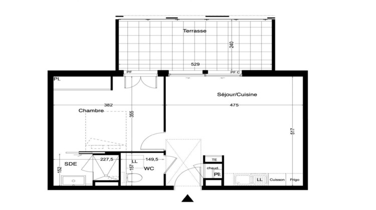
Iad France - Penelope Stoker (06 50 24 86 27) vous propose : Appartement T2 avec terrasse et garage sécurisé À CASTELNEAU-LE-LEZ
Idéalement situé à Castelneau le lez, dans un secteur recherché et parfaitement placé à coté des commodités, des transports et de Montpellier, découvrez cet appartement deux pièces alliant confort moderne et extérieur.
Ce bien propose une surface habitable de 43,7 m² environ, parfaitement optimisé.
Vous serez séduit par sa belle pièce de vie avec cuisine ouverte de 24 m² environ, lumineuse, donnant directement accès à une terrasse de 12,69 m² environ.
L'espace nuit se compose d'une chambre confortable de 13,54 m² environ, ainsi que d'une salle d'eau fonctionnelle et WC séparé.
Garage sécurisé inclus, un véritable atout dans le secteur.
Un appartement idéal pour une résidence principale, un pied-à-terre ou un investissement locatif de qualité.
Contactez moi pour plus d'informations ou organiser une visite.
Honoraires d'agence à la charge du vendeur. Bien non soumis au DPE. Les informations sur les risques auxquels ce bien est exposé sont disponibles sur le site Géorisques : www.georisques.gouv.fr. La présente annonce immobilière a été rédigée sous la responsabilité éditoriale de Mme Penelope Stoker EI (ID 83102), mandataire indépendant en immobilier (sans détention de fonds), agent commercial de la SAS I@D France immatriculé au RSAC de Paris sous le numéro 930194964, titulaire de la carte de démarchage immobilier pour le compte de la société I@D France SAS.
Retrouvez tous nos biens sur notre site internet. www.iadfrance.fr.
Informations LOI ALUR :
Honoraires charge vendeur. (gedeon_6727_32681202)



