Vente Appartement 34170, Castelnau-le-Lez france 157 000 €
Descriptif du bien
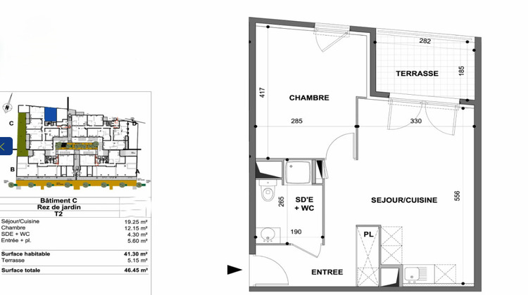
CASTELNAU LE LEZ - Dans une résidence récente et sécurisée , Appartement T2 de 41.30m2 situé en rez de chaussée comprenant un séjour avec cuisine americaine donnant sur une terrasse de 5.15m2, une chambre , une salle de bains et un wc. Ainsi qu'un garage . Tramway ligne 2, arrêt CENTURIONS au pied de l'immeuble.
Bien soumis au statut juridique de la copropriété. Charges annuelles de copropriété (Montant moyen annuel quote-part du budget prévisionnel vendeur): 1520EUR
Les informations sur les risques auxquels ce bien est exposé sont disponibles sur le site Géorisques : www. georisques. gouv. fr
Pour tous renseignements complementaires ou visite veuillez contacter : Martine ABAD 06.23.14.84.49- Agence AMJ IMMO





