Vente Appartement 34170, Castelnau-le-Lez france 290 000 €
Descriptif du bien
Situé à Castelnau-le-Lez, dans un environnement résidentiel, recherché et dynamique, nous vous proposons ce bien au sein d'une résidence moderne et élégante, à proximité immédiate du centre-ville, des écoles, des commerces, des établissements de santé et du tramway.
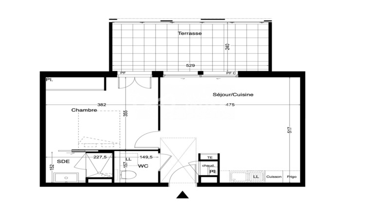
Cet appartement neuf T2 de 43 m² offre de beaux volumes, bien agencés, avec un niveau de finition séduisant.
Il se compose d'un séjour avec cuisine ouverte de 24 m², donnant sur une belle terrasse de 12,69 m² ouverte sur de beaux espaces exte?rieurs, a? l'abri d'une proprie?te? prive?e.
La chambre de 13,54 m² dispose d'un placard et d'un accès direct à la salle d'eau équipée. Les WC sont indépendants.
Prestations:
- Résidence neuve, sécurisée, à l'architecture contemporaine et à taille humaine.
- Peinture lisse blanche.
- Façades de placards et aménagements de qualité.
- Carrelage 60x60 cm, faïence 30x90 cm.
- Menuiseries bois, double vitrage.
-Salle d'eau équipée : meuble vasque 80 cm, robinetterie, receveur + paroi vitrée.
-WC suspendu.
- Chauffage individuel au gaz, sèche-serviette électrique.
- Place de parking en sous-sol.
À proximité immédiate :
- Centre-ville : cafés, boulangeries, marché, restaurants et commerces de proximité.
- Équipements publics : mairie, écoles (primaire, collège).
- Transport : tramway ligne ?2 accessible en 8?min à pied, direction Montpellier centre en 15?min.
- Loisirs et nature : parc du Domaine de Méric, espaces verts pour balades.
Idéal pour un premier achat ou un investissement locatif de qualité dans une commune recherchée.
Prix: 290 000 TTC.
Livraison imminente (4ème trimestre 2025).
Honoraires à la charge du vendeur. Dans une copropriété de 17 lots. Aucune procédure n'est en cours. Non soumis au DPE. Les informations sur les risques auxquels ce bien est exposé sont disponibles sur le site Géorisques : georisques.gouv.fr.
Votre conseiller MIM : Léna Gastal
Agent commercial (Entreprise individuelle)
RSAC 982 218 968


