Vente Appartement 44470, CARQUEFOU france 82 720 €
Descriptif du bien
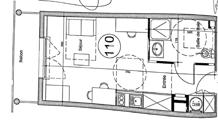
CARQUEFOU aux espaces de Maubreuil - Studio de 27m², vendu en LMNP - Avec un positionnement lié à la mobilité des entreprises et de ses collaborateurs, un emplacement stratégique en péri-urbain et non hyper centre des villes, pour répondre à la demande locative, bail commercial ferme offrant des loyers garantis, même en cas de vacance locative. La Suite comprend au premier étage sur 4 niveaux, entrée, salle d'eau, wc, séjour avec coin cuisine, balcon, parking aérien. 82 720 euros soit 10% TTC (7520 euros) d'honoraires à la charge de l'acquéreur, soit 75 200 euros Hors honoraires. Pour visiter et vous accompagner dans votre projet, contactez Georges-Henri NOMARI, au 0660223499 ou par courriel à gh.nomari@proprietes-privees.com Selon l'article L.561.5 du Code Monétaire et Financier, pour l'organisation de la visite, la présentation d'une pièce d'identité vous sera demandée. Cette vente est garantie 12 mois. Cette présente annonce a été rédigée sous la responsabilité éditoriale de Georges-Henri NOMARI agissant en qualité de conseiller immobilier indépendant sous portage salarial auprès de la SAS PROPRIETES PRIVEES, au capital de 44 920 euros, ZAC LE CHÊNE FERRÉ - 44 ALLÉE DES CINQ CONTINENTS 44120 VERTOU; SIRET 487 624 777 00040, RCS Nantes. Carte professionnelle Transactions sur immeubles et fonds de commerce (T) et Gestion immobilière (G) n° CPI 4401 2016 000 010 388 délivrée par la CCI Nantes - Saint Nazaire. Compte séquestre n°30932508467 BPA SAINT-SEBASTIEN-SUR-LOIRE (44230) ; Garantie GALIAN - 89 rue de la Boétie, 75008 Paris - n°28137 J pour 2 000 000 euros pour T et 120 000 euros pour G. Assurance responsabilité civile professionnelle par MMA Entreprise n° de police 120.137.405 Mandat réf : 412229NOG (10.00 % honoraires TTC à la charge de l'acquéreur.) Copropriété de 226 lots (). Charges annuelles : 833 euros.
- Type de bien : Appartement
- DPE : C - 91 à 150 kWh/².an
- GES : C - 11 à 20 kg eq CO2/².an
- Surface : 27 m²
- Localisation : France - pays-de-la-loire - Loire Atlantique
- Ville : CARQUEFOU
- Code postal : 44470
- Annonce créée le 12/07/2025




