Vente Appartement 40130, Capbreton france 530 000 €
Descriptif du bien
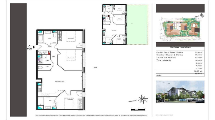
Iad France - Stéphane Daudrix (07 81 41 11 58) vous propose : Capbreton (40130)
Résidence neuve - livraison prévue 3ème trimestre 2027
Appartement T4 d'environ 84 m² environ avec jardin et 2 places de stationnement.
? Résidence aux normes actuelles
? Proche commodités, écoles et accès plages
? Cadre de vie recherché
D'autres lots peuvent être disponibles dans cette résidence selon les disponibilités.
? Contactez-moi pour plus d'informations et disponibilités actualisées.
Honoraires d'agence à la charge du vendeur. Bien non soumis au DPE. Les informations sur les risques auxquels ce bien est exposé sont disponibles sur le site Géorisques : www.georisques.gouv.fr. La présente annonce immobilière a été rédigée sous la responsabilité éditoriale de M. Stéphane Daudrix EI (ID 82426), mandataire indépendant en immobilier (sans détention de fonds), agent commercial de la SAS I@D France immatriculé au RSAC de DAX sous le numéro 927614925, titulaire de la carte de démarchage immobilier pour le compte de la société I@D France SAS.
Retrouvez tous nos biens sur notre site internet. www.iadfrance.fr.Informations LOI ALUR : Honoraires charge vendeur. (gedeon_6727_32224951)
- Type de bien : Appartement
- Surface : 84 m²
- Localisation : France - Nouvelle-Aquitaine - Landes
- Ville : Capbreton
- Code postal : 40130
- Annonce créée le 16/04/2026


