Vente Appartement 40130, CAPBRETON france 890 000 €
Descriptif du bien
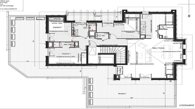
Une adresse rare, où l'architecture épouse le paysage pour offrir une qualité de vie durable et lumineuse. Composée de seulement six appartements, Brise Océane propose des espaces spacieux et baignés de lumière, du T2 cosy au T4 en attique. Orientés Sud et Ouest, les logements s'ouvrent sur des balcons, loggias ou terrasses végétalisées, prolongeant les intérieurs vers la quiétude des jardins. Un cadre de vie paisible, raffiné et résolument tourné vers le bien-être. Ce généreux T4, avec une double terrasse de plus de 120m2 vous offre toute la quiétude attendue d'une résidence d'exception. Frais de notaire réduits Les informations sur les risques auxquels ce bien est exposé sont disponibles sur le site Géorisques : www.georisques.gouv.fr Copropriété de 14 lots - dont 6 lots habitation.
- Type de bien : Appartement
- Surface : 113 m²
- Localisation : France - Nouvelle-Aquitaine - Landes
- Ville : CAPBRETON
- Code postal : 40130
- Disponible le 01/07/2027
- Annonce créée le 03/03/2026





