Vente Appartement 06150, Cannes la Bocca france 257 700 €
1 / 2
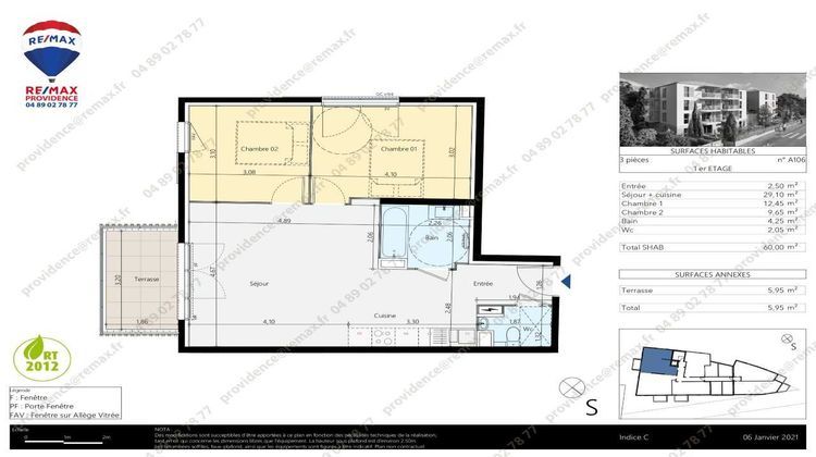
Descriptif du bien
Mesures fiscales :
TVA REDUITE
TVA 5.5
Prix TVA 20%
293 100 EUR
- Type de bien : Appartement
- Surface : 60 m²
- Localisation : France - provence-alpes-cote-d-azur - Alpes Maritimes
- Ville : Cannes la Bocca
- Code postal : 06150
- Disponible le 01/06/2023
- Annonce créée le 08/12/2023

