Vente Appartement 14000, Caen france 433 686 €
Descriptif du bien
Caen, appartement à vendre de deux pièces principales en résidence de standing rehabilitée, fiscalité des monuments historiques, possibilité de réduction d'impôts jusqu'a 90 000e (selon votre TMI) en investissement ou 45 000EUR en occupation (ou 100% avec ouverture gratuite occasionnelle aux publics), obligation de détention de 15 ans.
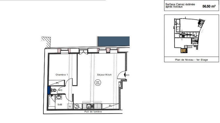
Dans le Cadre exceptionnel de l'ancien couvent de la Visitation, rue caponière, il offre une surface de 56.50m2 habitables, il est composée d'une entrée dans un grand séjour cuisine de 35m2, une chambre, une salle de douches, wc séparés. Chauffage électrique.
Parking extèrieur dans une cour privée fermée.
dpe non applicable aux monuments historiques
Quote part annuelle de charges : 650EUR
Prix du bien : 433686EUR, honoraires à la charge du vendeur.
Les informations sur les risques auxquels ce bien est exposé sont disponibles sur le site georisques.gouv.fr.
Cabinet QUESNEE 02.31.34.08.50
Les informations sur les risques auxquels ce bien est exposé sont disponibles sur le site Géorisques : www.georisques.gouv.fr




