Vente Appartement 14390, Cabourg france 252 000 €
Descriptif du bien
L'Agence MON BIEN A LA MER, Spécialiste de l'immo neuf en Bord de Mer, vous présente :
Résidence neuve achevée avenue Charles de Gaulle, standing, 400m de la Plage.
Frais de notaire réduits.
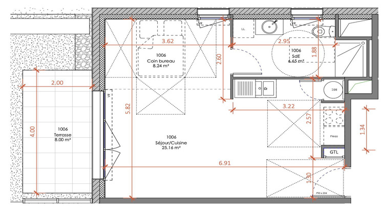
T1bis(transformable en T2) au rez de chaussée avec jardin 80m2, et parking.
Exposition Ouest, salle d'eau douche à l'italienne.
Nous Consulter
Honoraires à la charge du vendeur. Classe énergie B, Classe climat A Montant estimé des dépenses annuelles d'énergie pour un usage standard : entre 376.00 et 509.00 sur les années 2021, 2022 et 2023 (abonnements compris). Les informations sur les risques auxquels ce bien est exposé sont disponibles sur le site Géorisques : georisques.gouv.fr.
Votre conseiller MON BIEN A LA MER : Gérant - .fr MON BIEN A LA MER
Carte T CPI 2201 2018 000 025 040
RCP ACM IARD B1 7025278





