Vente Appartement 35170, BRUZ france 244 000 €
Descriptif du bien
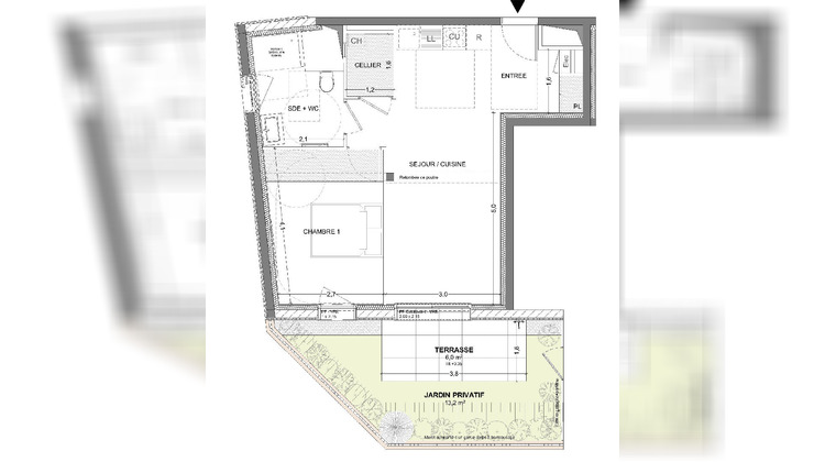
Bruz - Appartement 2 pièces 45.66m² Sud -jardin de 13.25m² - terrasse de 6.04m² - stationnement en sous-sol sécurisé. A 9 km de Rennes, au coeur d'un secteur recherché pour sa qualité de vie et sa proximité avec l'hyper-centre, découvrez cet appartement 2 pièces. Situé en rez-de-jardin d'une résidence contemporaine RE2020, ce bien allie design moderne, haute performance énergétique et confort de vie optimal. Offrant 45.66 m² parfaitement agencés et une exposition plein Sud, cet appartement séduit par son atmosphère lumineuse et son confort. Il se compose d'une entrée avec placard, d'un séjour lumineux avec cuisine ouverte, donnant accès à une terrasse de 6.04m² et un jardin de 13.25m², idéal pour profiter d'un extérieur ensoleillé. Une chambre agréable, une salle d'eau avec WC, un cellier. Un stationnement sécurisé en sous-sol complètent ce bien. Côté mobilité, l'emplacement est tout simplement exceptionnel : Rennes accessible en seulement 10 minutes grâce à la gare TER de Bruz, Réseau de bus STAR pour des déplacements quotidiens simplifiés, Aéroport Rennes Bretagne à proximité, un véritable atout pour voyager sereinement. Les informations sur les risques auxquels ce bien est exposé sont disponibles sur le site Géorisques : www.georisques.gouv.fr. Copropriété de 39 lots - dont 17 lots habitation. (Pas de procédure en cours). Charges annuelles : 648 euros.
- Type de bien : Appartement
- Surface : 45 m²
- Localisation : France - Bretagne - Ile et Vilaine
- Ville : BRUZ
- Code postal : 35170
- Annonce créée le 09/12/2025


