Vente Appartement 35170, Bruz france 215 000 €
Descriptif du bien
En Exclusivité !
Smart Proprio Bretagne vous présente à la vente ce beau T3 de 61m2 refait à neuf.
Idéal pour un premier achat immobilier ou pour un investissement locatif, vous êtes à 5 min de Kerlann.
Sa situation vous offre un environnement calme, amplifié par le double vitrage équipant l'ensemble de l'appartement.
Situé au Rez-de-chaussée (Surélevé) vous bénéficierez d'un belle luminosité et d'un balcon exposé au SUD.
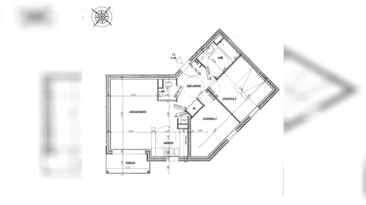
Le Bien est composé de 3 lots:
1. AU REZ DE CHAUSSEE DU BATIMENT A : Un appartement de type 3 comprenant un séjour / cuisine ouverte (26m2), deux chambres (11m2 et 10m2) , salle de bains, WC, hall, balcon.
2. AU SOUS SOL DES BATIMENTS A ET B : Un garage de 16.54 m2
3. EN EXTERIEUR : Un parking de 12.50m2
L'immeuble est raccordé à la Fibre Optique.
Vous serez proche de toutes les commodités et transports à pieds.
Taxe Foncière 2024 : 1 119, 00 EUR
Charges de copro / trimestre : 226 EUR
Prix de vente : 215 000 EUR FAI frais de négociation à la charge du vendeur inclus
Diagnostic énergétique : Classe C pour la performance énergétique et C pour l'impact environnemental. (établis en Juillet 2025)
Estimation des coûts annuels : entre 850 EUR et 1 190 EUR par an, Prix moyens des énergies indexés sur les années 2021, 2022, 2023
Appartement libre et disponible immédiatement.
Copropriété de 37 lots d'habitation répartis en 2 bâtiments. Pas de procédure en cours.
Informations sur les risques naturels, miniers, ou technologiques disponibles sur le site : www.georisques.gouv.fr.
Pour plus de renseignements contactez nous au 06.09.39.52.71 ou par mail : immobilier35@smartproprio.com
Expert Immobilier Certifié CFEI No2020/920, Agent commercial immatriculé sous le numéro 537898025 RSAC de RENNES. Rattaché à la carte T NoCPI75012024000000031
Annonce proposée par un agent commercial. - Annonce rédigée et publiée par un Agent Mandataire -
- Type de bien : Appartement
- DPE : C - 91 à 150 kWh/².an
- GES : C - 11 à 20 kg eq CO2/².an
- Surface : 61 m²
- Localisation : France - Bretagne - Ile et Vilaine
- Ville : Bruz
- Code postal : 35170
- Annonce créée le 20/08/2025





