Vente Appartement 33520, Bruges france 265 000 €
Descriptif du bien
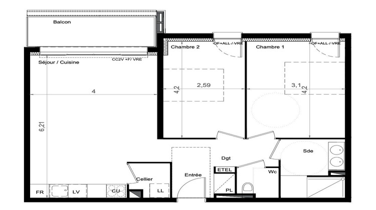
Découvrez ce bel appartement T3, situé à Bruges, offrant un cadre de vie agréable, à proximité des commodités, des transports et des principaux axes vers Bordeaux. Au sein d'une résidence paysagée et arborée, profitez d'un cadre de vie paisible tout en restant à proximité immédiate du centre-ville.
L'entrée dessert une pièce de vie avec cuisine ouverte, lumineuse et fonctionnelle, formant un espace central convivial et optimisé avec un cellier attenant.
Le séjour s'ouvre directement sur une terrasse de 7 m², idéal pour profiter d'un extérieur au quotidien.
L'espace nuit propose deux chambres, dont une chambre de 13 m², ainsi qu'une salle d'eau, des WC séparés.
Un appartement agréable à vivre, où chaque espace a été pensé pour conjuguer confort et fluidité.
Honoraires à la charge du vendeur. Dans une copropriété de 20 lots. Aucune procédure n'est en cours. DPE vierge. Les informations sur les risques auxquels ce bien est exposé sont disponibles sur le site Géorisques : georisques.gouv.fr.
- Type de bien : Appartement
- Surface : 53 m²
- Localisation : France - Nouvelle-Aquitaine - Gironde
- Ville : Bruges
- Code postal : 33520
- Annonce créée le 30/01/2026



