Vente Appartement 33520, Bruges france 250 000 €
Descriptif du bien
LIMITE ENTRE BOUSCAT/BRUGES/BORDEAUX - TRAMWAY
Dans un quartier calme et recherché à proximité immédiate du tramway situé entre Bruges, Le Bouscat et Bordeaux, venez découvrir cette résidence à taille humaine de 20 lots seulement.
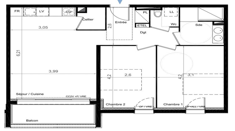
Ce magnifique appartement offre une belle pièce de vie lumineuse, prolongée d'une magnifique terrasse parfaite pour profiter de moments conviviaux en famille ou entre amis. L'agencement a été soigneusement pensé avec un cellier pratique, un placard dans l'entrée, un espace nuit bien séparé comprenant deux chambres confortables, une salle d'eau équipée d'une double vasque et un WC indépendant.
Cet appartement se distingue par ses prestations de qualité, incluant des menuiseries en aluminium, des volets roulants électriques, une peinture lisse soignée et un élégant parquet qui apporte chaleur et confort.
La qualité de vie, la luminosité et la proximité des commodités font de cet appartement une opportunité rare à ne pas manquer.
Deux places de parkings complètent ce bien en SUS obligatoire.
D'autres lots (parkings/appartements) sont encore et également disponibles.
- Prix TVA 5,5% avec parkings : 275 000
- Prix TVA 20% avec parkings : 310 000
- Frais de Notaires Réduits
- Garanties
- RE 2020
- Exonération de Taxe Foncière
- ...
Visuel non contractuel suggestion d'aménagement
LIMITE ENTRE BOUSCAT/BRUGES/BORDEAUX - TRAMWAY
Honoraires à la charge du vendeur. Dans une copropriété de 20 lots. Aucune procédure n'est en cours. DPE en cours. Les informations sur les risques auxquels ce bien est exposé sont disponibles sur le site Géorisques : georisques.gouv.fr.
Votre conseiller RH Patrimoine : Maxime HERVE
Agent commercial (Entreprise individuelle)
RSAC 133095555 J
RCP 13309666 J
- Type de bien : Appartement
- Surface : 63 m²
- Localisation : France - Nouvelle-Aquitaine - Gironde
- Ville : Bruges
- Code postal : 33520
- Annonce mise à jour le 08/08/2025



