Vente Appartement 05100, BRIANCON france 1 043 000 €
Descriptif du bien
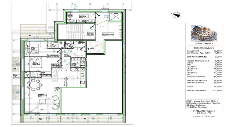
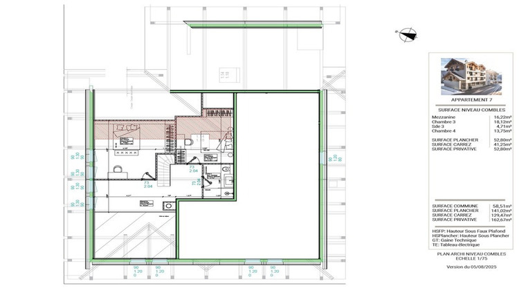
La résidence ''LES BUREAUX ET LOGEMENTS DE FERDINAND'' . Petite copropriété de huit appartements et 3 locaux commerciaux . Située en centre ville de Briançon, non loin de la gare et du départ des remontées mécaniques et tout proche des commerces et commodités. Le parfait mélange pour apprécier la quiétude des montagnes, l'ensoleillement réputé de la région tout en restant à proximité des commerces et commodités de la ville de Briançon (Patrimoine mondial de l'Unesco) et du départ de la célèbre station de ski de Serre Chevalier et son domaine de plus de 300 kms de pistes, animé hiver comme été. Cette nouvelle résidence de standing vous apportera tout se dont vous avez toujours rêvé: cachet et harmonie du bois, modernité des équipements (ascenseur, vidéophone, cuisine intégrée...) et économie d'énergie (chauffage par PAC/poêle à granules/bois et panneaux photovoltaïques pour l'eau...). Réalisée par les Chalets Bayrou, lignée de compagnons charpentiers et menuisiers, gage de haute qualité et synonyme de Prestige. Vous serez conquis par la beauté des matériaux utilisés, mélange de matériaux nobles et authentiques : vieux bois, mélèze, métal, pierre de luzerne et laine d'Arpin qui font de "Les bureaux et logements de Ferdinand" un véritable bijoux de luxe et de bien-être. Cet appartement en duplex (N 7) , de 129.47 m²LC (141.02m² au sol) situé au 3ème étage est desservi par un ascenseur. Il est composé comme suit: Au 3ème étage: Une entrée, une pièce de vie (cheminée) avec cuisine ouverte aménagée et équipée le tout donnant sur un balcon, une buanderie, 2 chambres avec salles d'eau privatives, wc. Dans les combles: mezzanine, 2 chambres, une salle d'eau/wc Un espace de stockage commun à deux appartements 2 Places de parking couvertes à usage privatif. Votre rêve, une réalité! Nombre de lots de la copropriété : 10, Montant moyen annuel de la quote-part de charges (budget prévisionnel)(A DEFINIR) : 0€ soit 0€ par mois. Les honoraires d'agence sont à la charge de l'acquéreur, soit 4,93% TTC du prix hors honoraires. Les informations sur les risques auxquels ce bien est exposé sont disponibles sur le site Géorisques : www. georisques. gouv. fr. Réseau Immobilier CAPIFRANCE - Votre agent commercial (RSAC N°442 866 562 - Greffe de GAP) Christine FINO Entrepreneur Individuel 06 87 16 00 26 - Réf.938115
- Type de bien : Appartement
- Surface : 140 m²
- Localisation : France - provence-alpes-cote-d-azur - Alpes (Hautes)
- Ville : BRIANCON
- Code postal : 05100
- Annonce créée le 24/01/2026





