Vente Appartement 29200, Brest france 229 000 €
Descriptif du bien
L'agence 'MON BIEN A LA MER', spécialiste de l'immobilier neuf sur les côtes Bretonnes, vous présente :
Petite résidence neuve de 13 lots seulement, front de rade, vue mer. expo sud.
Commerces bus et tram -500m. Plage Sainte Anne à 10 min en voiture.
Travaux en cours-visitable.
Ascenseur.
Frais de notaire réduits.
Parking sous sol.
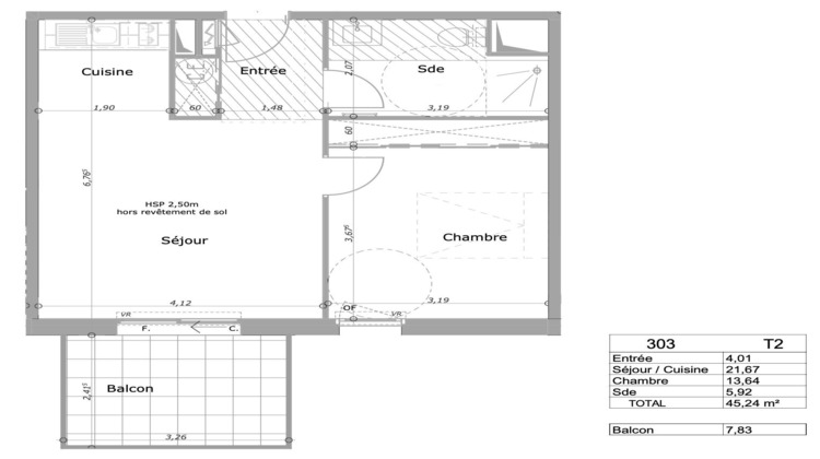
T2 2è étage avec belle vue mer.
Séjour de 22m2+entrée 4m2
terrasse 8m2
Chambre 13,63m2
Salle d'eau douche à l'italienne meuble vasque sèche serviette.
Parking sous sol inclus.
Nous Consulter.
Honoraires à la charge du vendeur. Classe énergie B, Classe climat B Montant estimé des dépenses annuelles d'énergie pour un usage standard : entre 320.00 et 510.00 sur les années 2021, 2022 et 2023 (abonnements compris). Les informations sur les risques auxquels ce bien est exposé sont disponibles sur le site Géorisques : georisques.gouv.fr.
Votre conseiller MON BIEN A LA MER : Gérant - .fr MON BIEN A LA MER
Carte T CPI 2201 2018 000 025 040
RCP ACM IARD B1 7025278





