Vente Appartement 42220, Bourg-Argental france 299 000 €
Descriptif du bien
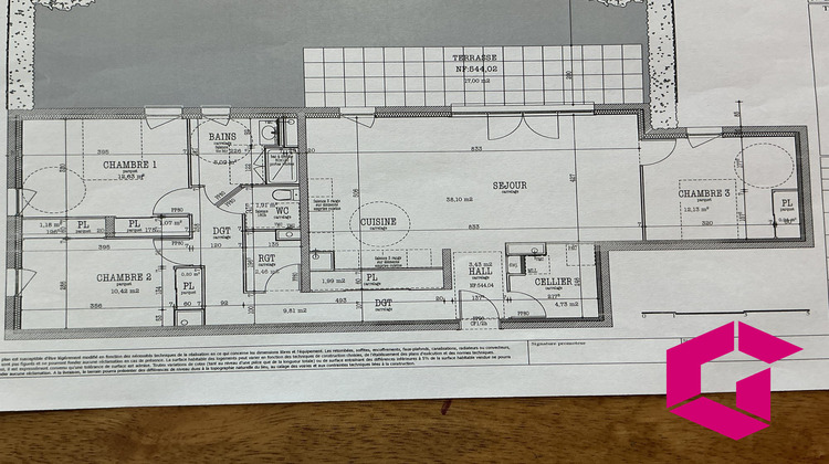
À Vendre Spacieux Appartement sur plan à Bourg-Argental
Situé dans un environnement calme et agréable à Bourg-Argental, découvrez ce magnifique appartement sur plan d'environ 106 m², pensé pour votre confort !
Il se compose de :
3 chambres lumineuses
Cuisine ouverte sur un grand séjour
Cellier pratique + dressing
Salle de bain moderne
Terrasse d'environ 17 m², idéale pour vos moments de détente
Chauffage par pompe à chaleur performance et économies garanties
Volumes généreux
Luminosité naturelle
Prestations modernes
Parfait pour une famille ou pour ceux qui recherchent de l'espace dans un cadre paisible.
? Renseignements et visites : 06 32 93 04 50
Ne manquez pas cette belle opportunité à Bourg-Argental !
Honoraires à la charge du vendeur. Non soumis au DPE. Les informations sur les risques auxquels ce bien est exposé sont disponibles sur le site Géorisques : georisques.gouv.fr.
Votre conseiller GTI Immobilier ANNONAY : Stéphanie MARTINEZ
Agent commercial (Entreprise individuelle)
RSAC 830772547
- Type de bien : Appartement
- Surface : 105 m²
- Localisation : France - Auvergne-Rhône-Alpes - Loire
- Ville : Bourg-Argental
- Code postal : 42220
- Annonce créée le 30/05/2025

