Vente Appartement 92100, BOULOGNE-BILLANCOURT france 959 000 €
Descriptif du bien
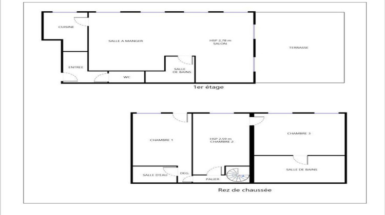
Idéalement situé rue de La Rochefoucauld, au coeur d'un quartier prisé de Boulogne-Billancourt, cette adresse bénéficie d'un cadre de vie calme et agréable, tout en restant proche des commerces, des établissements scolaires et du métro Jean Jaurès ligne 10. Au sein d'une cour privée, ce duplex offre un véritable esprit maison de ville par son entrée privative au rez-de-chaussée ou au 1er étage, une belle hauteur sous plafond et la distribution sur deux niveaux. D'une surface Carrez de 92m2 avec une terrasse de 20m2 exposée sud-est (soit une surface pondérée de 99m2) ce bien se compose au rez-de-chaussée de trois chambres, dont une suite parentale avec sa salle de bains et wc et d'une salle d'eau, au 1er étage, une pièce de vie de près de 33m2 donnant sur la terrasse, une cuisine, des wc invités et une salle d'eau. Des travaux sont à prévoir. Ce bien rare dans ce quartier de Boulogne présente un beau potentiel. Une place de parking est disponible en sus du prix. Prix FAI : 959 000 euros dont 4.00 % honoraires TTC à la charge de l'acquéreur. Copropriété de 23 lots - dont 19 lots habitation. (Pas de procédure en cours). Charges annuelles : 2650 euros. Sabine HADDAD (EI) Agent Commercial - Numéro RSAC : - .
- Type de bien : Appartement
- DPE : G -> 450 kWh/².an
- GES : C - 11 à 20 kg eq CO2/².an
- Surface : 92 m²
- Localisation : France - ile-de-france - Hauts de Seine
- Ville : BOULOGNE-BILLANCOURT
- Code postal : 92100
- Annonce créée le 18/11/2025








