Vente Appartement 33000, Bordeaux france 399 600 €
Descriptif du bien
VOTRE LIEU DE VIE FAMILIAL À DEUX PAS DU CENTRE VILLE DE BORDEAUX
À quelques minutes du centre-ville en tramway et avec un arrêt de bus au pied de la résidence, une nouvelle vie s'offre à vous. À proximité des commerces, des parcs et des écoles/lycées, cet appartement saura vous offrir un environnement de vie privilégié.
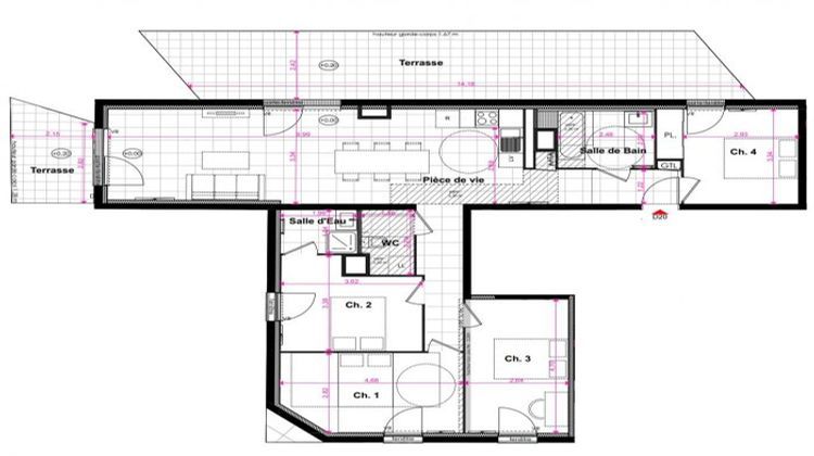
Venez découvrir cet appartement T5 composé d'une entrée qui mène à une magnifique pièce de vie de plus de 45m2 avec double orientation et prolongée par deux belles terrasses.
Côté nuit, vous trouverez trois belles chambres avec placard, une suite parentale avec salle d'eau, une salle de bain et un wc indépendant.
Une place de parking complète le bien en SUS obligatoire. Une seconde place de parking en SUS en option est également disponible.
VOTRE LIEU DE VIE FAMILIAL À DEUX PAS DU CENTRE VILLE DE BORDEAUX
Honoraires à la charge du vendeur. Dans une copropriété de 65 lots. Aucune procédure n'est en cours. Classe énergie A, Classe climat A Montant estimé des dépenses annuelles d'énergie pour un usage standard : entre 501.00 et 678.00 sur les années 2021, 2022 et 2023 (abonnements compris). Les informations sur les risques auxquels ce bien est exposé sont disponibles sur le site Géorisques : georisques.gouv.fr.
Votre conseiller RH Patrimoine : Maxime HERVE
Agent commercial (Entreprise individuelle)
RSAC 133095555 J
RCP 13309666 J
- Type de bien : Appartement
- Surface : 104 m²
- Localisation : France - Nouvelle-Aquitaine - Gironde
- Ville : Bordeaux
- Code postal : 33000
- Annonce mise à jour le 05/12/2025

