Vente Appartement 33000, Bordeaux france 399 054 €
Descriptif du bien
UNE VIE AU VERT AUX PORTES DU CENTRE VILLE
Idéalement située aux portes du centre-ville de Bordeaux proche du tramway, du nouveau pont Simone Weil et proche de la Gare St-Jean, cette résidence vous offre un cadre de vie privilégié face à un parc verdoyant.
La vie quotidienne y est facile, vous disposez d'un large choix de commerces, services, écoles et pôles économiques.
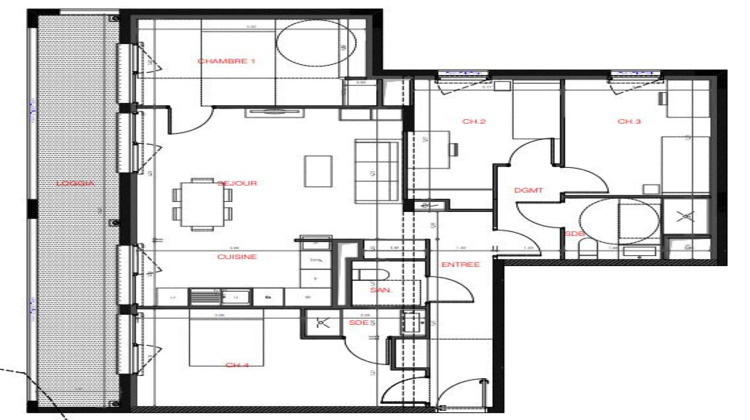
Venez découvrir ce T5 disponible d'une surface de 98 m2 en étage avec une vue dégagée sur un espace vert. Il se compose d'une entrée avec placard, un séjour/cuisine qui accède directement sur sa terrasse de exposé sud-ouest.
Côté nuit, vous trouverez 4 chambres, des placards, une salle de bains, une salle d'eau et un wc indépendant.
Une place de parking sécurisée complète ce bien.
Prix TVA 5.5% : 399 054
Prix TVA 20% : 453 900
- Frais de Notaire réduit
- Garanties
- RT 2012
- Exonération de taxe Foncière
UNE VIE AU VERT AUX PORTES DU CENTRE VILLE
Honoraires à la charge du vendeur. Dans une copropriété de 141 lots. Aucune procédure n'est en cours. DPE en cours. Les informations sur les risques auxquels ce bien est exposé sont disponibles sur le site Géorisques : georisques.gouv.fr.
Votre conseiller RH Patrimoine : Gérant associé - Philippe HERVE
Carte T CPI 3301 2018 000 029 220
- Type de bien : Appartement
- Surface : 80 m²
- Localisation : France - Nouvelle-Aquitaine - Gironde
- Ville : Bordeaux
- Code postal : 33000
- Annonce mise à jour le 05/12/2025



