Vente Appartement 33000, Bordeaux france 450 000 €
Descriptif du bien
UN ROOF TOP, DE LA LUMINOSITE, DU VOLUME, UNE QUALITE DE VIE
Situé très proche de Bordeaux Centre tout en étant proche de la Garonne, venez découvrir cette localisation stratégique.
Dans cette copropriété à taille humaine de seulement 23 lots, un magnifique appartement de 87m2 baigné de lumière grâce à ses multiples ouvertures y est disponible.
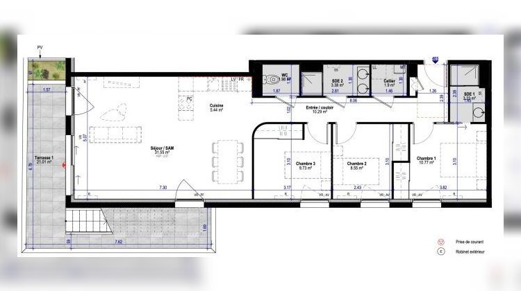
Il se compose d'une grande pièce de vie lumineuse avec cuisine et coin bureau de 37m2 donnant accès directement à une terrasse sans vis à vis et avec vue dégagée. Vous accéderez ensuite à une deuxieme terrasse de 33m2 privative à l'appertement. Côté nuit, trois chambres dont une avec salle d'eau privative, une salle d'eau double vasque, un cellier ainsi qu'un WC.
Une place de parking couverte et sécurisée complète ce bien.
- Aucun travaux à prévoir
- Ascenseur
- Frais de Notaires Réduits
- Garanties
- RT 2012
- Disponible
- ...
UN ROOF TOP, DE LA LUMINOSITE, DU VOLUME, UNE QUALITE DE VIE
Honoraires à la charge du vendeur. Dans une copropriété de 23 lots. Aucune procédure n'est en cours. DPE en cours. Les informations sur les risques auxquels ce bien est exposé sont disponibles sur le site Géorisques : georisques.gouv.fr.
Votre conseiller RH Patrimoine : Maxime HERVE
Agent commercial (Entreprise individuelle)
RSAC 133095555 J
RCP 13309666 J
- Type de bien : Appartement
- Surface : 87 m²
- Localisation : France - Nouvelle-Aquitaine - Gironde
- Ville : Bordeaux
- Code postal : 33000
- Annonce mise à jour le 04/04/2025




