Vente Appartement 33000, Bordeaux france 190 000 €
Descriptif du bien
Situé à deux pas de l'église Notre Dame de Bordeaux, dans une rue calme et recherchée des Chartrons, appartement T1 bis ou T2 de 42 m² carrez.
Dans une petite copropriété de 3 lots dont les parties communes sont en cours de rénovation, reprise des peintures, électricité, rénovation de la porte d'entrée, nettoyage de la façade, démoussage et remaniement toiture. Cet appartement offre de belles possibilités d'aménagements. Ce bien à rénover entièrement, a gardé ses prestations anciennes : parquet, hauteur sous plafond 3m30, cheminée.
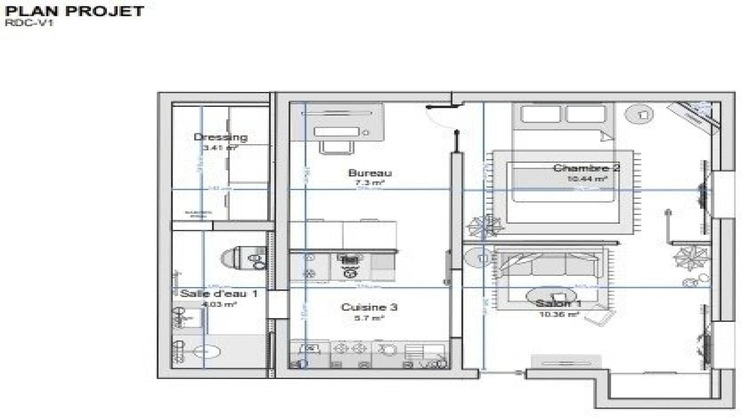
Séjour / cuisine 17 m², chambre 11 m², bureau 7 m², salle de bains / WC 7 m², remise 4 m²
Idéal premier achat et / ou investissement. Visuels 3D et plans projets en dernières photos.
Enveloppe travaux à prévoir. Plusieurs lots à la vente.
Plans et devis sur demande
Le bien comprend 1 lot, et il est situé dans une copropriété de 6 lots (les charges courantes annuelles moyennes de copropriété sont de 600 ¤ et le syndicat des copropriétaires ne fait pas l'objet d'une procédure citée à l'article L. 721-1 du code de la construction et de l'habitation).
Les informations sur les risques auxquels ce bien est exposé sont disponibles sur le site Géorisques : www.georisques.gouv.fr
Prix de vente : 190 000 ¤
Honoraires charge vendeur
Contactez votre conseiller SAFTI : Maria MARTINS, Tél. : 07 61 19 62 77, E-mail : m.martins@safti.fr - EI - Agent commercial immatriculé au RSAC de Bordeaux sous le numéro 809 004 138.
Informations LOI ALUR :
Soumis au régime de copropriété.
Nombre de lots : 6.
Quote part annuelle(moyenne) : 600 euros.
Honoraires charge vendeur. (gedeon_26118_32727176)
- Type de bien : Appartement
- DPE : E - 231 à 330 kWh/².an
- GES : B - 6 à 10 kg eq CO2/².an
- Surface : 42 m²
- Localisation : France - Nouvelle-Aquitaine - Gironde
- Ville : Bordeaux
- Code postal : 33000
- Annonce créée le 26/02/2026




