Vente Appartement 33000, Bordeaux france 321 000 €
Descriptif du bien
Sous compromis : RÉSIDENCE HAUT DE GAMME, CALME, PROXIMITÉ TRAM ET CENTRE DE BORDEAUX
Nichée au sein d'une résidence récente et haut de gamme, cet appartement profite d'un cadre de vie rare, à la fois urbain et serein. Les parties communes soignées, l'architecture contemporaine et les prestations de qualité offrent une atmosphère élégante et sécurisante. Situé à quelques minutes du centre de Bordeaux, vous bénéficiez de la proximité immédiate des quais, des parcs et de nombreux événements culturels et sportifs, tout en restant dans un environnement calme, en retrait des nuisances. Les commerces, écoles et restaurants se trouvent à distance piétonne, et la ligne de tramway permet de rejoindre très facilement le coeur de ville comme les principaux pôles d'activité. Cet emplacement est idéal pour profiter pleinement de la vie bordelaise sans renoncer au confort d'une résidence paisible.
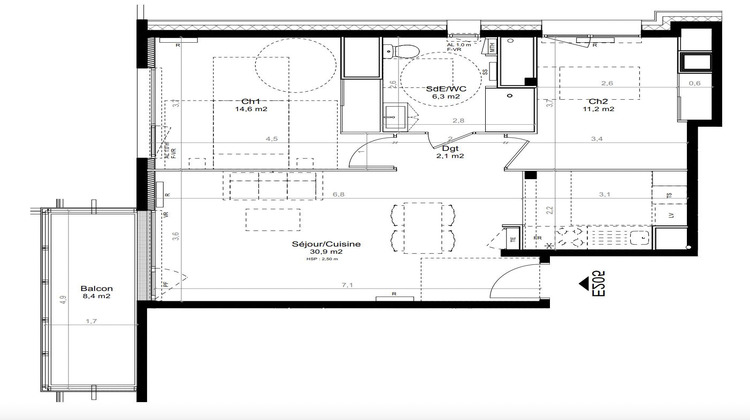
L'appartement se compose d'un vaste séjour/cuisine d'environ 31 m² ouvrant sur une terrasse de près de 8,5 m² offrant un véritable prolongement extérieur de la pièce de vie. Deux chambres bien proportionnées (environ 14,6 m² pour la première et 11,2 m² pour la seconde) permettent une organisation confortable, avec des espaces jour et nuit bien distincts. Une grande salle d'eau avec WC d'environ 6,3 m² et un dégagement optimisé complètent l'ensemble, pour une superficie intérieure d'environ 60 m² bien agencée. Les ouvertures généreuses assurent une belle luminosité, tandis que la configuration du plan, très fonctionnelle, facilite l'ameublement et la vie quotidienne
Une place de parking couverte et sécurisée complète ce bien en SUS.
- Frais de notaire REDUITS
- Normes
- Garanties
- Exonération de Taxe Foncière
- Très bientôt Disponible
- ...
RÉSIDENCE HAUT DE GAMME, CALME, PROXIMITÉ TRAM ET CENTRE DE BORDEAUX
Honoraires à la charge du vendeur. Dans une copropriété de 126 lots. Aucune procédure n'est en cours. DPE en cours. Les informations sur les risques auxquels ce bien est exposé sont disponibles sur le site Géorisques : georisques.gouv.fr.
Votre conseiller RH Patrimoine : Maxime HERVE
Agent commercial (Entreprise individuelle)
RSAC 133095555 J
RCP 13309666 J
- Type de bien : Appartement
- Surface : 65 m²
- Localisation : France - Nouvelle-Aquitaine - Gironde
- Ville : Bordeaux
- Code postal : 33000
- Annonce mise à jour le 06/03/2026



