Vente Appartement 33000, Bordeaux france 369 500 €
Descriptif du bien
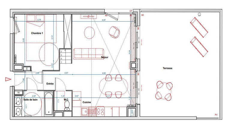
Situé à proximité immédiate des commodités, commerces et transports, découvrez ce superbe appartement T4 en duplex situé en dernier étage, offrant une configuration rare et des volumes remarquables.
Dès l'entrée, vous accédez à une pièce de vie particulièrement lumineuse de 33 m² avec cuisine ouverte, bénéficiant d'un vide sur séjour qui accentue les volumes et apporte une véritable sensation d'espace et de hauteur sous plafond.Largement ouverte sur l'extérieur, cette pièce de vie donne accès à une grande terrasse de 43 m², au calme, idéale pour profiter pleinement d'un extérieur généreux.
L'espace nuit propose trois chambres, dont deux grandes chambres de 13 m², bien distinctes des pièces de vie, assurant confort et intimité. Une salle d'eau, une salle de bains et deux WC complètent l'ensemble de manière fonctionnelle.
Un appartement singulier, marqué par ses volumes, sa hauteur sous plafond et sa relation privilégiée avec l'extérieur.
Une place de parking complète ce bien en SUS.
Honoraires à la charge du vendeur. Dans une copropriété de 205 lots. Aucune procédure n'est en cours. DPE vierge. Les informations sur les risques auxquels ce bien est exposé sont disponibles sur le site Géorisques : georisques.gouv.fr.
- Type de bien : Appartement
- Surface : 93 m²
- Localisation : France - Nouvelle-Aquitaine - Gironde
- Ville : Bordeaux
- Code postal : 33000
- Annonce créée le 30/01/2026





