Vente Appartement 33000, Bordeaux france 788 000 €
Descriptif du bien
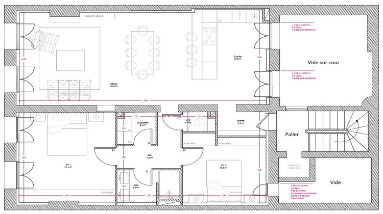
Appartement 3 pièces 84 m² dans un immeuble pierre aux Grands Hommes.
Au coeur du triangle d'or de Bordeaux, au sein de la place des Grands Hommes, appartement T3 dans un immeuble pierre de 4 étages en cours de rénovation totale avec ascenseur.
Cet appartement traversant au 3ème étage sur quatre, comporte une vaste piece de vie avec cuisine ouverte créant un espace de vie de plus de 43m².
L'espace nuit présente deux chambres avec placards intégrés, une salle d'eau, une buanderie et un toilette indépendant.
Emplacement idéal pour ce bien rare et exceptionnel !
Honoraires inclus de 5% TTC à la charge de l'acquéreur. Prix hors honoraires 750 500 . Dans une copropriété de 6 lots. Aucune procédure n'est en cours. DPE en cours. Les informations sur les risques auxquels ce bien est exposé sont disponibles sur le site Géorisques : georisques.gouv.fr.
Votre conseiller HABITAT CONSEIL : Sandra CHAMPARNAUD
Agent commercial (Entreprise individuelle)
- Type de bien : Appartement
- Surface : 84 m²
- Localisation : France - Nouvelle-Aquitaine - Gironde
- Ville : Bordeaux
- Code postal : 33000
- Annonce créée le 05/12/2025




