Vente Appartement 33000, Bordeaux france 205 000 €
Descriptif du bien
Sous compromis : BELLE PIECE DE VIE AVEC TERRASSE EXPOSEE SUD-EST
Situé à Bordeaux, dans un quartier paisible, cet appartement 2 pièces s'intègre parfaitement dans une résidence contemporaine aux aménagements de qualités. Vous trouverez à deux pas de chez vous : Commerces et Services de proximité, un domaine sportif et d'autres lieux de vie agréables (Darwin, Parc de l'ermitage). Enfin simplifiez votre quotidien grâce à des accès rapides au Tramway et aux Bus.
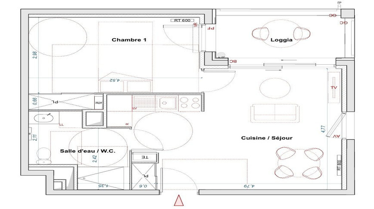
Dès l'entrée, vous découvrirez une belle pièce de vie de près de 25 m² avec cuisine ouverte, baignée de lumière grâce à son orientation sud-est. Cet espace convivial se prolonge harmonieusement vers une terrasse, elle aussi exposée plein sud-est, idéale pour profiter du soleil du matin jusqu'à l'après-midi.
Une chambre intimiste ainsi qu'une salle d'eau moderne avec WC viennent compléter ce bien pensé pour le confort du quotidien.
Un appartement idéal pour profiter d'un cadre de vie calme, lumineux et bien situé, à deux pas de l'essentiel.
Une place de parking sécurisée/couverte en SUS complète ce bien.
- Aucun travaux à prévoir
- Ascenseur
- Frais de Notaires Réduits
- Garanties
- RT 2012
- Disponible
- ...
BELLE PIECE DE VIE AVEC TERRASSE EXPOSEE SUD-EST
Honoraires à la charge du vendeur. Dans une copropriété de 42 lots. Aucune procédure n'est en cours. DPE en cours. Les informations sur les risques auxquels ce bien est exposé sont disponibles sur le site Géorisques : georisques.gouv.fr.
Votre conseiller RH Patrimoine : Maxime HERVE
Agent commercial (Entreprise individuelle)
RSAC 133095555 J
RCP 13309666 J
- Type de bien : Appartement
- Surface : 45 m²
- Localisation : France - Nouvelle-Aquitaine - Gironde
- Ville : Bordeaux
- Code postal : 33000
- Annonce mise à jour le 23/01/2026





