Vente Appartement 33000, Bordeaux france 355 000 €
Descriptif du bien
VUE PARC - EXPO SUD-OUEST - CALME
Idéalement située aux portes du centre-ville de Bordeaux proche du tramway, du nouveau pont Simone Weil et proche de la Gare St-Jean, cette résidence vous offre un cadre de vie privilégié face à un parc verdoyant en cours de rénovation.
La vie quotidienne y est facile, vous disposez d'un large choix de commerces, services, écoles et pôles économiques.
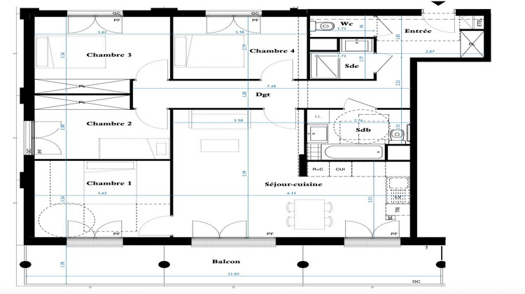
Venez découvrir ce T4/T5 disponible d'une surface de 96m2 en étage avec une vue dégagée sur un espace vert. Il se compose d'une entrée avec placard qui donne directement sur un volumineux séjour/cuisine qui accède directement sur sa terrasse de exposé sud-ouest.
Côté nuit, vous trouverez 3 chambres, des placards, une salle de bains, une salle d'eau et un WC indépendant.
Une place de parking sécurisée complète ce bien en SUS obligatoire.
- Prix TVA 5,5% avec parkings : 369 000
- Prix TVA 20% avec parkings : 420 000
- Frais de Notaire réduit
- Garanties
- RT 2012
- Exonération de taxe Foncière
- Disponible Immédiatement
- Ascenseur
- ...
VUE PARC - EXPO SUD-OUEST - CALME
Honoraires à la charge du vendeur. Dans une copropriété de 28 lots. Aucune procédure n'est en cours. DPE en cours. Les informations sur les risques auxquels ce bien est exposé sont disponibles sur le site Géorisques : georisques.gouv.fr.
Votre conseiller RH Patrimoine : Maxime HERVE
Agent commercial (Entreprise individuelle)
RSAC 133095555 J
RCP 13309666 J
- Type de bien : Appartement
- Surface : 96 m²
- Localisation : France - Nouvelle-Aquitaine - Gironde
- Ville : Bordeaux
- Code postal : 33000
- Annonce mise à jour le 08/08/2025





