Vente Appartement 33000, Bordeaux france 369 500 €
Descriptif du bien
COUP DE COEUR À BORDEAUX DUPLEX T4 AVEC TERRASSE DE 40 M² ET PARKING
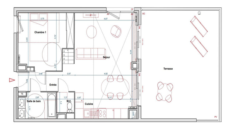
Situé à Bordeaux, dans un environnement calme et recherché, à proximité immédiate des commerces, écoles et transports en commun, ce bel appartement T4 en attique de 93 m², en duplex, séduit par ses volumes, sa luminosité et ses prestations.
Au premier niveau, l'appartement s'ouvre sur une vaste pièce de vie avec double hauteur sous plafond, baignée de lumière grâce à sa triple orientation. Cet espace convivial se prolonge sur une superbe terrasse de plus de 40 m², véritable extension à ciel ouvert, idéale pour recevoir ou se détendre en toute intimité.
Une chambre avec placard, une salle de bain, ainsi qu'un WC indépendant complètent ce niveau.
À l'étage, le coin nuit accueille deux chambres et une deuxième salle d'eau avec WC, parfait pour une vie de famille ou recevoir en toute indépendance.
Une place de parking complète ce bien (prix en SUS).
Un bien rare, lumineux et parfaitement situé, idéal pour une résidence principale alliant confort de vie et fonctionnalité.
COUP DE COEUR À BORDEAUX DUPLEX T4 AVEC TERRASSE DE 40 M² ET PARKING
Honoraires à la charge du vendeur. Dans une copropriété de 205 lots. Aucune procédure n'est en cours. Non soumis au DPE. Les informations sur les risques auxquels ce bien est exposé sont disponibles sur le site Géorisques : georisques.gouv.fr.
Votre conseiller RH Patrimoine : Marc VEYRET
Agent commercial (Entreprise individuelle)
- Type de bien : Appartement
- Surface : 93 m²
- Localisation : France - Nouvelle-Aquitaine - Gironde
- Ville : Bordeaux
- Code postal : 33000
- Annonce mise à jour le 16/01/2026




